Loading document...

1 September 2025


The proposed site comprises of a parcel of land located between Newlands House and Briardene, off the main A2 Laxey to Douglas Coast Road, Baldrine in the Parish of Lonan.
The two OS Maps show the proposed site edged in red.
The overall site at Newlands House was originally 3 separate plots, see copy of the original Deed Plan attached below which indicates the original plot layouts.
Over time Newlands House has been extended to both the south and north into the adjoining plots and this is indicated on the submitted drawing “Original Plot Divisions” drawing number 25 1932/06.
The proposed Approval in Principle application is to re-instate the original southerly plot, indicted as “Plot I”, on the submitted drawing number 25 1932/06.
The land is zoned as “Predominantly Residential” on the Area Plan for the East. See extract copy, attached on page 5, of the Proposals Map 9- Baldrine.

A meeting was held on site with the Senior Planning Officer, Chris Balmer, on Wednesday 18th June 2025 to discuss the proposals further in terms of planning.
A meeting was held on site with the Arboricultural Officer, Ian McDermott, on Tuesday 24th June 2025 to discuss the proposals further in terms of existing trees.
A meeting was held on site with the Highways Engineer, Adam Dunlop, on Thursday 26th June 2025 to discuss the proposals further in terms of highways access options.
All pre-application meetings went well and resulted in positive discussions and the proposed application has been prepared based upon these early on site meetings/discussions.
The application takes the form of an “Approval in Principle” application addressing means of access.
The submitted drawings have been prepared to demonstrate that a suitably sized dwelling can be accommodated within the confines of the proposed site, whilst considering the immediate neighbouring properties, and whilst also providing adequate amenity space to the proposed dwelling.
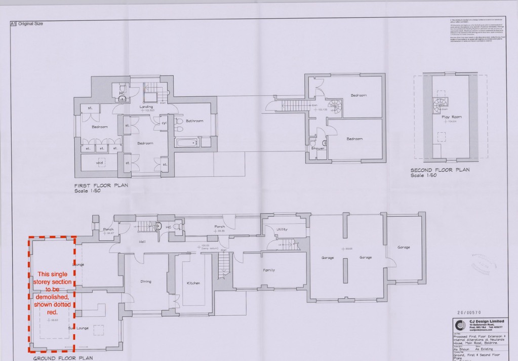
The existing single storey extension built to the south of Newlands House would be demolished, taking the existing house back to its original form. No windows/doors would be installed in the newly built wall to the south elevation of Newlands House.
A copy of the existing Floor Plans of Newlands House is attached on page 7 and we indicate the extension that is to be demolished, shown dotted in red.
A new boundary fence would be set between the proposed plot and the reduced Newlands House, see submitted drawing number 25 1932/04, for further details.
Existing Floor Plans of Newlands House
The submitted drawings show a proposed detached dwelling shaded in red. This is indicative only to demonstrate that in principle a suitably designed/sized dwelling could be accommodated on the proposed site. The final design and layout of the proposed detached dwelling would be subject to a “Reserved Matters” application should this “Approval in Principle” application prove successful.
The submitted Site Section A-A, drawing number 25 1932/07, demonstrates that a suitably designed dwelling can be accommodated on the site which considers the ridge heights of the immediate neighbouring properties, Newlands House & Briardene, and provide a natural step down in the street scene following the existing ground contours/levels.
No principle windows would be installed in the south and north side elevations of the proposed dwelling to prevent any overlooking into Briardene and Newlands House.
The design and siting of the proposed detached dwelling was discussed with the Planning Department at the site meeting carried out on Wednesday 18th June 2025.


Though all other matters of the application are to be dealt with at the “Reserved Matters” stage, should the Approval in Principle application prove successful, the means of access is being addressed as part of this Approval in Principle application.
The submitted drawing number 25 1932/04 shows the layout of the proposed vehicle access and driveway to serve the proposed detached dwelling.
The vehicle access is proposed to be taken off the existing Packhorse Lane, located to the rear of the proposed site.
The existing pedestrian gate and access leading off the rear of the proposed site through to Packhorse Lane, located directly to the rear of Briardene, is to be altered to a vehicle access with a section of new driveway located alongside the dividing boundary between the proposed site and Briardene. This vehicle access and driveway will provide access to the rear of the proposed detached dwelling.
Vehicle access to the proposed site is to be taken off Packhorse Lane located to the rear of the site.
Due to the difference in site levels/contours and the existing natural hedgerow, to the dividing boundary between the proposed site and Briardene, vehicles using the proposed driveway will not affect the neighbouring property known as Briardene. See photograph attached below. A site visit will also demonstrate that this is the case.
Proposed section of driveway is to be located alongside the dividing boundary between the proposed site & Briardene.
The proposed parking for the detached dwelling is to be provided at the lower ground floor level of the detached dwelling with a Garage/Carport space for a minimum of 2 No cars.
The proposed driveway would also allow space for cars to manoeuvre within the confines of the proposed site and both enter and exit the site in a forward gear.
All vehicle access and parking requirements have been discussed with the Highways Division at the site meeting held on Thursday 26th June 2025.


All existing trees located in the south-west corner of the proposed site are to remain in place to provide a natural screening and setting of the proposed detached dwelling when viewed from the street scene of the main A2 Laxey to Douglas Coast Road.
The submitted drawings indicate the Root Protection Area, (RPA), of the existing trees hatched in green, they also demonstrate that at this Approval in Principle stage a suitably sized & located dwelling can be accommodated on the proposed site outside the RPA of these existing trees.
Obviously should this Approval in Principle application prove successful a full Arboricultural Impact Assessment, (AIA), to BS5837 will be submitted as part of the follow on “Reserved Matters” application with the final proposed design of the detached dwelling taking into account this AIA.
Should this Approval in Principe application prove successful we would expect and welcome a Condition of Approval requesting for a AIA at the Reserved Matters stage.
The existing trees located in the south-west corner of the proposed site are to be retained.
All tree requirements were discussed with the Forestry Division at the site meeting held on Tuesday 24th June 2025.
Copyright in submitted documents remains with their authors. Request removal