PLANNING STATEMENT FOR THE ERECTION OF A BUILDING ACCOMMODATING 38 APARTMENTS AND ASSOCIATED LANDSCAPING, DRAINAGE AND CAR PARKING, SITE OF THE FORMER OCEAN CASTLE HOTEL, UPPER PROMENADE, AND HILL HOUSE, ROWANY VILLAS, PORT ERIN
1.0 INTRODUCTION
1.1 The site lies on the eastern side of the upper promenade in Port Erin and is currently cleared of its former building - the Ocean Castle Hotel. Planning approval was previously granted for its redevelopment (see Planning History below). The Ocean Castle was one of four large hotels built on the upper promenade - The Imperial, the Port Erin Royal and the Golf Links Hotels (later the Princess Hotel).
Sarah Corlett Town Planning Consultancy Ltd Registered address: Ballachrink Croft, Ballacorey Road, Bride, Isle of Man IM7 4AW t: 07624 485517 e: [email protected] w: www.sarahcorlett.com Directors: Sarah Elizabeth Corlett Nicola Jane Corlett
Company Registration 134325C
A black and white photograph showing a row of large historic hotels along a coastal road, with text labels identifying buildings like the Ocean Castle Hotel and Port Erin Royal Hotel.A street-level photograph showing a grassy plot of land enclosed by a temporary fence, with large light-blue multi-story apartment buildings in the background and a parking area in the foreground.
1.2 Of these original hotels, the Imperial Hotel was redeveloped as 12 apartments and 18 parking spaces beneath (Imperial Heights) in 2007 with 8 apartments in a detached building at the rear with 13 parking spaces to the rear (Imperial Lodge): the Port Erin Royal Hotel was approved for redevelopment (now Royal Shore Apartments), ultimately for 32 apartments following amendments after original approval in 2014 for 34 apartments with 45 car parking spaces spread between the basement, the rear of the site and alongside the adjacent dwelling. The Princess Hotel (formerly the Golf Links Hotel as shown above) redeveloped as apartments in the mid to late 1990s. Further down the promenade, there have been further redevelopments of Windsor House and Brobourne Hotel as well as Eagle Hotel to apartments.
1.3 The site represents the curtilage of the former Ocean Castle Hotel and also that of the adjacent detached dwelling, Hill House which sits between Rowany Villas and Ocean Castle Drive with its garages accessing the latter and the front of the house facing the former.
1.4 To the east of Hill House is a terrace (Rowany Villas) of four two and a half storey houses. As far as 2, Rowany Villas, the road is publicly adopted but thereafter it is a private road. There is no parking restriction on this side road.
1.5 To the north of the site is Ocean Castle Drive onto which front the side of Imperial Heights, the front of Imperial Lodge (a detached building accommodating eight apartments) and also three bungalows - Hilltop, Hill View and Hillside.
Sarah Corlett Town Planning Consultancy Ltd Registered address: Ballachrink Croft, Ballacorey Road, Bride, Isle of Man IM7 4AW t: 07624 485517 e: [email protected] w: www.sarahcorlett.com Directors: Sarah Elizabeth Corlett Nicola Jane Corlett
Company Registration 134325C
2.0 Planning policy
2.1 The site lies within an area of Predominantly Residential use on the Area Plan for the South adopted in 2013. This area stretches south as far as St. Catherine’s Church from where the land is designated as Mixed Use.
2.2 There are no constraints on Map 1. The site is not within an existing or proposed Conservation Area (although the promenade highway and boroughs to the west are included within the proposed CA (see green dotted line above), no buildings are Registered, the site is not indicated as being at risk of flooding and there are no trees or ecologically sensitive areas on the site.
2.3 Planning policy generally directs development to established settlements (Strategic Aim, Strategic Policies 1, 2 and 10, Spatial Policy 5 and Housing Policy 4 of the Strategic Plan). Port Erin is a Service Centre where a range of housing and employment opportunities should be provided (Spatial Policy 2). Port Erin, with Castletown is the highest settlement in the south in the hierarchy and second only to Douglas in the tiers of settlement importance. Strategic Policy 1 encourages development to make best use of sites. This is referred to also in the Area Plan Written Statement:
4.13.2 To this end, the Department will ensure that a density level on the sites is realised which makes best use of the available land and seeks to optimise the number of dwellings on the site. This should not be taken to be an opportunity to seek maximisation of the site but more a considered approach to ensuring that the best use is made of the site taking full consideration of all material considerations. In all cases, and in addition to any other Development Brief requirements, applicants will be expected to consult with
Sarah Corlett Town Planning Consultancy Ltd Registered address: Ballachrink Croft, Ballacorey Road, Bride, Isle of Man IM7 4AW t: 07624 485517 e: [email protected] w: www.sarahcorlett.com Directors: Sarah Elizabeth Corlett Nicola Jane Corlett
Company Registration 134325C
A site location map showing a coastal area with a purple boundary line outlining the development site and surrounding land use zones.
the Isle of Man Water and Sewerage Authority to discuss proposed housing densities prior to the submission of an application.
2.4 Sustainable development, both in terms of location of development and method and materials of construction, is encouraged by both the Climate Change Act 2021 and the Residential Design Guide. The site is one of a number of undeveloped sites which have been identified in the Unoccupied Urban Sites exercise which aims to identify and promote the development of brownfield sites ahead of Greenfield development. The site is one of seven in Port Erin, the others including the Marine Biological Station which is currently being redeveloped under the provisions of 20/10467/B/ and the Grosvenor Hotel site and adjacent buildings which had planning approval for redevelopment (7 tourist apartments and 7 permanent apartments) under 12/01540/B but has not been implemented. The report into the UUSs in the South includes the following:
The development of Port Erin as a Victorian seaside resort resulted in the construction of numerous hotels and guest houses on and around the Promenade. However, as tourism trends have shifted over time some of Port Erin’s visitor infrastructure has been converted from hotels and guest houses to residential apartments or entirely redeveloped for residential uses. In some cases however, demolitions have resulted in gap sites which have not been re-developed and have accordingly been included on the UUS Register: South.
2.5 Affordable housing is generally for developments over 8 units and Public Open Space (POS) in accordance with the Housing Policy 5, Recreation Policy 3 and Appendix 6.
2.6 The car parking standard is generally one space per one bedroomed apartment and two spaces each for anything larger than that (see also Manual for Manx Roads).
2.7 The number of spaces may be reduced where the development:
(a) would secure the re-use of a Registered Building or a building of architectural or historic interest; or
(b) would result in the preservation of a sensitive streetscape; or
(c) is otherwise of benefit to the character of a Conservation Area.
(d) is within a reasonable distance of an existing or proposed bus route and it can be demonstrated a reduced level of parking will not result in unacceptable on street parking in the locality.
2.8 Appendix 7 expands on this in paragraph A.7.1:
Sarah Corlett Town Planning Consultancy Ltd Registered address: Ballachrink Croft, Ballacorey Road, Bride, Isle of Man IM7 4AW t: 07624 485517 e: [email protected] w: www.sarahcorlett.com Directors: Sarah Elizabeth Corlett Nicola Jane Corlett
Company Registration 134325C
In the case of town centre and previously developed sites, the Department will consider reducing this requirement having regard to:
(a) the location of the housing relative to public transport, employment, and public amenities;
(b) the size of the dwelling;
(c) any restriction on the nature of the occupancy (such as sheltered housing); and
(d) the impact on the character and appearance of the surrounding area.
2.9 General Policy 2 of the Strategic Plan summarises the relevant considerations:
Development which is in accordance with the land-use zoning and proposals in the appropriate Area Plan and with other policies of this Strategic Plan will normally be permitted, provided that the development:
(a) is in accordance with the design brief in the Area Plan where there is such a brief;
(b) respects the site and surroundings in terms of the siting, layout, scale, form, design and landscaping of buildings and the spaces around them;
(c) does not affect adversely the character of the surrounding landscape or townscape;
(d) does not adversely affect the protected wildlife or locally important habitats on the site or adjacent land, including water courses;
(e) does not affect adversely public views of the sea;
(f) incorporates where possible existing topography and landscape features, particularly trees and sod banks;
(g) does not affect adversely the amenity of local residents or the character of the locality;
(h) provides satisfactory amenity standards in itself, including where appropriate safe and convenient access for all highway users, together with adequate parking, servicing and manoeuvring space;
(i) does not have an unacceptable effect on road safety or traffic flows on the local highways;
(j) can be provided with all necessary services;
(k) does not prejudice the use or development of adjoining land in accordance with the appropriate Area Plan;
(l) is not on contaminated land or subject to unreasonable risk of erosion or flooding;
(m) takes account of community and personal safety and security in the design of buildings and the spaces around them; and
(n) is designed having due regard to best practice in reducing energy consumption.
Sarah Corlett Town Planning Consultancy Ltd Registered address: Ballachrink Croft, Ballacorey Road, Bride, Isle of Man IM7 4AW t: 07624 485517 e: [email protected] w: www.sarahcorlett.com Directors: Sarah Elizabeth Corlett Nicola Jane Corlett
Company Registration 134325C
2.10 The Residential Design Guide explains how the impact of new development on existing residential amenities is measured as well as encouraging biodiversity nett gain, sustainable construction and how to address Climate Change.
Sarah Corlett Town Planning Consultancy Ltd Registered address: Ballachrink Croft, Ballacorey Road, Bride, Isle of Man IM7 4AW t: 07624 485517 e: [email protected] w: www.sarahcorlett.com Directors: Sarah Elizabeth Corlett Nicola Jane Corlett
Company Registration 134325C
3.0 Planning history
3.1 The site was the subject of 09/00982/B - 7 apartments - which was approved but not implemented although the building was demolished.
Imperial Hotel - now Imperial Heights and Imperial Lodge
3.2 The Imperial Hotel was redeveloped to provide 20 apartments in two buildings (07/00158/B - see below for floor plans). This was considered prior to the introduction of the Strategic Plan which required affordable housing and POS and whilst there was a Government resolution for affordable housing, none was required as a scheme for a greater number of units had approval and was capable of implementation. It was considered reasonable not to require it in this case.
Sarah Corlett Town Planning Consultancy Ltd Registered address: Ballachrink Croft, Ballacorey Road, Bride, Isle of Man IM7 4AW t: 07624 485517 e: [email protected] w: www.sarahcorlett.com Directors: Sarah Elizabeth Corlett Nicola Jane Corlett
Company Registration 134325C
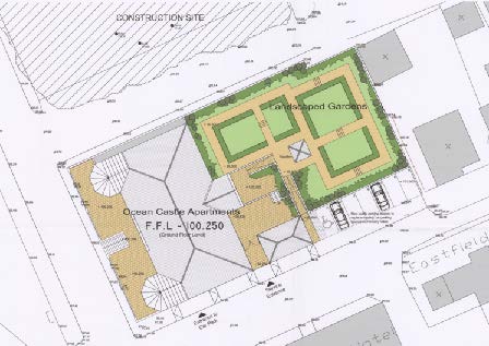
Architectural site plan showing the layout of Ocean Castle Apartments, including landscaping, parking, and building footprint.This is a black and white architectural elevation drawing showing the proposed front facade of a multi-story residential building labeled 'Ocean Castle'. The drawing includes detailed annotations for floor levels and a scale of 1:100.A photograph showing a large, multi-story light blue apartment building with balconies, situated next to a similar structure with a fence and parked cars in the foreground.
Approved basement, ground, first and second floor plans, Imperial Heights
The image displays four architectural floor plans for a multi-story residential building, labeled as Basement, Ground, First, and Second Floor Plans.
Sarah Corlett Town Planning Consultancy Ltd Registered address: Ballachrink Croft, Ballacorey Road, Bride, Isle of Man IM7 4AW t: 07624 485517 e: [email protected] w: www.sarahcorlett.com Directors: Sarah Elizabeth Corlett Nicola Jane Corlett
Company Registration 134325C
Approved third, fourth and fifth floor plans for Imperial Heights
The image displays architectural floor plans for the third, fourth, and fifth floors of a building, showing the layout of multiple apartments.
Sarah Corlett Town Planning Consultancy Ltd Registered address: Ballachrink Croft, Ballacorey Road, Bride, Isle of Man IM7 4AW t: 07624 485517 e: [email protected] w: www.sarahcorlett.com Directors: Sarah Elizabeth Corlett Nicola Jane Corlett
Company Registration 134325C
Approved floor plans for Imperial Lodge
Architectural floor plans showing the layout of ground floor and upper floor apartments with room labels.
Sarah Corlett Town Planning Consultancy Ltd Registered address: Ballachrink Croft, Ballacorey Road, Bride, Isle of Man IM7 4AW t: 07624 485517 e: [email protected] w: www.sarahcorlett.com Directors: Sarah Elizabeth Corlett Nicola Jane Corlett
Company Registration 134325C
Port Erin Royal Hotel - now Royal Shore 3.3 The Port Erin Royal Hotel was demolished to make way for 34 apartments with 45 parking spaces (14/00893/B) in a five storey (above ground) building with basement and surface level parking. No public open space was provided or required by Port Erin Commissioners or the Department. Affordable housing was provided through a S13 Agreement which related to the payment of a commuted sum rather than provision of units on site. The drawings include street scenes which include the approved scheme for the Ocean Castle site (above).
Sarah Corlett Town Planning Consultancy Ltd Registered address: Ballachrink Croft, Ballacorey Road, Bride, Isle of Man IM7 4AW t: 07624 485517 e: [email protected] w: www.sarahcorlett.com Directors: Sarah Elizabeth Corlett Nicola Jane Corlett
Company Registration 134325C
Architectural elevation drawing of a multi-story apartment block showing the facade, level markers, and adjacent buildings.Site plan showing proposed apartment development (Rowant Villas) adjacent to Eastfield House, including parking layout and access routes.
Sarah Corlett Town Planning Consultancy Ltd Registered address: Ballachrink Croft, Ballacorey Road, Bride, Isle of Man IM7 4AW t: 07624 485517 e: [email protected] w: www.sarahcorlett.com Directors: Sarah Elizabeth Corlett Nicola Jane Corlett
Company Registration 134325C
Architectural perspective drawing showing a multi-story residential development with balconies and landscaping.Architectural floor plan showing the layout of multiple apartment units with furniture and room divisions.
Princess Hotel - now Princess Towers 3.4 The Princess Hotel was redeveloped as apartments under 97/01602/B, now Princess Apartments, and prior to the introduction of the Strategic Plan.
Sarah Corlett Town Planning Consultancy Ltd Registered address: Ballachrink Croft, Ballacorey Road, Bride, Isle of Man IM7 4AW t: 07624 485517 e: [email protected] w: www.sarahcorlett.com Directors: Sarah Elizabeth Corlett Nicola Jane Corlett
Company Registration 134325C
A low-angle photograph of a modern multi-story apartment block featuring glass balconies and white cladding. The building is situated on a street with a car and a white boundary wall visible in the foreground.A street-level photograph showing a large white and blue apartment block named 'Princess Colleen' alongside other residential buildings in a coastal town setting.
Windsor House and Brobourne House - now Windsor House Apartments 3.5 The Windsor House and Brobourne Hotel redevelopment involved 9 apartments with basement car parking and the approval was subject to a Section 13 agreement for affordable housing (13/00501/B).
Sarah Corlett Town Planning Consultancy Ltd Registered address: Ballachrink Croft, Ballacorey Road, Bride, Isle of Man IM7 4AW t: 07624 485517 e: [email protected] w: www.sarahcorlett.com Directors: Sarah Elizabeth Corlett Nicola Jane Corlett
Company Registration 134325C
Architectural elevation drawing showing the proposed 'Kingston House' apartment block facade alongside existing buildings labeled 'Victoria Square' and 'Marina Lane'.A street-level photograph showing two large, white multi-story apartment blocks flanking a road under a cloudy sky.
4.0 The proposed development
4.1 Proposed is the erection of a building on the site which will accommodate 38 apartments and associated car parking (57 spaces), landscaping and open amenity space. The 38 apartments will be 1 x four bed, 10 x three bed, 14 x two bed and 13 one bed units.
4.2 The basement level will accommodate 34 parking spaces including three accessible spaces and five spaces which are positioned directly behind other spaces. Also provided are seven stores, a communal cycle store, three lift shafts, meter room and communal bin store. Access into the basement is from Rowany Villas which is the lower end of the site and where tactile paving will be provided either side of the entrance. The basement extends only to the footprint of the former Ocean Castle Hotel and does not extend into the footprint of Hill House. The development will facilitate the provision of electric vehicle charging facilities for the occupants of the property should this be desired on occupation of the building.
4.3 The ground floor level will accommodate eight apartments: 3 x one bed, 3 x two bed and 2 three bed units along with three areas of car parking providing a total of 16 spaces accessed off Ocean Castle Drive with 7 spaces accessed from Rowany Villas. An area of landscaped open space for the occupants will be provided within a central space amounting to 224 sq m with an area of planting between the lower car park and 1, Rowany Villas.
4.4 New pedestrian footways will be provided along Rowany Villas, Ocean Castle Drive and the promenade.
4.5 The first, second and third floors will also provide 8 apartments (3 x one bed, 3 x two bed and 2 x three bed units).
4.6 The fourth floor will accommodated 1 x one bed, 2 x two bed and 2 x three bed units.
4.7 The fifth floor will accommodate a single four bed apartment.
4.8 All floors are accessible by lift from the basement upward.
4.9 In terms of elevational treatment, the building is following the cues of Royal Shore and Windsor House in terms of a modern architectural design and materials palette, shallow to flat roofing with a darker rooftop unit set back from the sides and front of the main building.
4.10 Unlike Royal Shore and Windsor House the proposed building will have two outer light coloured elements with a central recessed section, all above a stone plinth level alongside the promenade, wrapping around to Rowany Villas and a small section of Ocean Castle Drive, accommodating the
Sarah Corlett Town Planning Consultancy Ltd Registered address: Ballachrink Croft, Ballacorey Road, Bride, Isle of Man IM7 4AW t: 07624 485517 e: [email protected] w: www.sarahcorlett.com Directors: Sarah Elizabeth Corlett Nicola Jane Corlett
Company Registration 134325C
basement ventilation grilles and also a square aperture in which a name plate could be inserted at a later date.
4.11 The building has been finished to create vertical sections with different finishes visually breaking up the facades but with the horizontality of the glazed balconies following the rectilinear form of the front elevation and where the two side elevations step down in height and gradually reducing in height with a separation between 1, Rowany Villas which is lower again, of 1.7m to the car parking spaces and 16.2m to the building itself.
4.12 Solar PV panels are proposed on the roof at the north eastern part of the building.
4.13 The development will incorporate the introduction of native species of trees - prunus avium, malus silvestris to the rear of the Ocean Castle Drive parking spaces together with shrubs including nepeta, pyracantha ‘Golden Charmer’, geranium renardii ‘Reynard Geranium’, sedum ‘Stonecrop’, achillea millefolium ‘Yarrow’, spiraea ‘Anthony Waterer’, ceanothus thyrsilflorus ‘Pepens’, hebe ‘Blue Gem’ and ilex aquifolium which have been selected to add visual and ecological interest to the site, attracting pollinators and birds. Up to three built in swift boxes can also be installed on the north east elevation.
Affordable housing
4.14 The development results in a requirement for 9.5 affordable housing units. A meeting was held with the Department for Infrastructure Housing Directorate on 1st November 2023 where the scheme was discussed with the Head of Commercial.
4.15 The applicant suggested that due to the nature of the proposed scheme, it would be challenging to viably accommodate affordable units on site and as such reaching agreement in respect of a commuted sum would be the preferred approach. Discussions are ongoing and it is recognised that affordable housing obligations will be subject to a Section 13 Agreement between the applicant, the Department for Infrastructure Housing Directorate and the Department of Environment, Food and Agriculture.
Public Open Space
4.16 224 sq m of public open space is being provided as part of the application which will provide private amenity space for the residents as well as enhancing the visual appearance of the development.
4.17 The Isle of Man Strategic Plan sets out standards for space provision for new residential development. These standards will be applied having regard to criteria such as the availability and proximity of existing Open Space, public glens, parks, the foreshore and school fields which may be
Sarah Corlett Town Planning Consultancy Ltd Registered address: Ballachrink Croft, Ballacorey Road, Bride, Isle of Man IM7 4AW t: 07624 485517 e: [email protected] w: www.sarahcorlett.com Directors: Sarah Elizabeth Corlett Nicola Jane Corlett
Company Registration 134325C
available for use outside of school hours. These standards are more easily deliverable when developing a residential housing development on a greenfield site. It is less practical to meet these spatial requirements when re-developing an in-town brownfield site with a single apartment building, mainly due to site size constraints, greater scale and massing associated with these projects and the need to ensure that the design fits within its environs.
4.18 Due to the nature of the proposed development, it is unlikely that significant demand for formal play facilities will arise. The site is well served by existing nearby open space which includes Bradda Glen, the brooghs and Port Erin beach.
4.19 The Ocean Castle site is identified as an Unoccupied Urban Site (UUS) on the UUS Register and redevelopment of these listed sites is currently being encouraged through the Government’s Island Infrastructure Scheme. It is recognised that bringing forward brownfield sites is challenging in the current high interest rate and build cost climate and that planning obligations can materially affect the economic viability of the scheme.
4.20 Consideration of planning obligations such as the provision of POS and Affordable Housing requires understanding and negotiation by the relevant parties to ensure that these sites are ultimately developed. In that regard, the applicant has met with Port Erin Commissioners to discuss the scheme and to explain its view in respect of POS. The possibility of contributing to offsite POS provision by way of commuted sum was discussed and will be subject to further discussion between the parties.
Sarah Corlett Town Planning Consultancy Ltd Registered address: Ballachrink Croft, Ballacorey Road, Bride, Isle of Man IM7 4AW t: 07624 485517 e: [email protected] w: www.sarahcorlett.com Directors: Sarah Elizabeth Corlett Nicola Jane Corlett
Company Registration 134325C
5.0 Assessment
5.1 The site is highly sustainable, designated for residential development and located within a Service Centre which is second only to Douglas in the settlement hierarchy and one of the two settlements at the top of the hierarchy for the South. Furthermore, the site is identified in the Unoccupied Urban Sites Register as one of seven in the south of the Island which should be promoted for development above greenfield sites.
5.2 The development of this site for apartments should therefore be considered acceptable in principle given the above and the land use designation in the adopted development plan, added to which, the promenade has been evolving for some time to replace the older hotels with residential accommodation in the form of apartments with the most recently approved developments having a modern style and finish.
5.3 The key issues in this case are therefore the considerations set out in General Policy 2, Transport Policy 7, Housing Policy 5, Recreation Policy 3 assisted by the guidance in the Residential Design Guide, Manual for Manx Roads and up to date advice on good practice as set out in the RDG for such things as biodiversity, sustainable construction and Climate Change.
1.The impact of the building on the street scene
2.The adequacy of car parking
3.The impact of the building on the living conditions of those in adjacent sites
4.The acceptability of the means of access and egress
5.The adequacy of affordable housing
6. Provisions for Public Open Space
7. Provisions for energy efficiency and combatting Climate Change
5.4 Streetscene and visual impact
5.4.1 The existing streetscene comprises both newer and older buildings, traditional and modern design and materials but there is a consistency of the buildings following the gradient of the promenade which generally steps down. More modern design has moved away from turrets and towers on the corners of buildings and new buildings have been more horizontal in proportion and form. The more modern approach is not uncommon throughout the promenade. Indeed some of the earlier attempts to replicate the original buildings have not been as successful as perhaps may have been hoped, due to the absence of critical ornamentation, the use of more modern materials in such detailing but mostly due to modern day, lower ceiling heights and the resulting more horizontal appearance of the overall buildings.
5.4.2 Royal Shore and Windsor House both demonstrate an acceptance of a more modern approach. Windsor House incorporated a top floor finished in a different material - a dark cladding - and set
Sarah Corlett Town Planning Consultancy Ltd Registered address: Ballachrink Croft, Ballacorey Road, Bride, Isle of Man IM7 4AW t: 07624 485517 e: [email protected] w: www.sarahcorlett.com Directors: Sarah Elizabeth Corlett Nicola Jane Corlett
Company Registration 134325C
back from the main walls, reinforcing the dominance of the main walls and the eaves whilst reducing the impact of the additional height. This building is higher than the buildings on each side - on Marina Lane and Victoria Square.
5.3.4 Similarly, Royal Shore does not incorporate the corner towers and angled bays of Imperial Heights and Princess Towers and has a more horizontal emphasis with its balconies on the front elevation and its very shallow pitched roofing. This new building is also taller than that to the south, and due to the almost flat roof and difference in ground levels, there is more than a storey of additional height compared with Princess Towers to the south..
5.4.5 The building proposed in this current application is no higher than what previously had approval on the site and it also respects the stepping down of each building in accordance with the natural slope of the promenade.
5.5 Car parking
5.5.1 The development is to provide 38 apartments and 57 car parking spaces. The Strategic Plan standards would result in a requirement for 63 spaces. The proposal is a little short of that but is sufficient to notionally provide at least one space per apartment. There is, in addition, provision for bicycle storage to facilitate alternative transport modes. The site is well placed in relation to public transport, to the village and the facilities and amenities it offers. This reduces the need for the use of a private motor vehicle by occupants of this building.
Sarah Corlett Town Planning Consultancy Ltd Registered address: Ballachrink Croft, Ballacorey Road, Bride, Isle of Man IM7 4AW t: 07624 485517 e: [email protected] w: www.sarahcorlett.com Directors: Sarah Elizabeth Corlett Nicola Jane Corlett
Company Registration 134325C
A street-level photograph showing a coastal town scene with large apartment blocks situated on a grassy hill in the background and pedestrians on the road below.
5.5.2 Royal Shore provided 45 spaces for 34 apartments (later reduced to 32 through the merging of apartments) and this was accepted due to its sustainable location. Reference was also made to 09/01084/B which provided 18 parking spaces for 16 apartments on land to the rear of Princess Towers and the Port Erin Royal Hotel which was also considered to be acceptable.
5.5.3 If Climate Change is to be addressed, one of the critical issues is the reduction in the need to travel and the encouragement of more sustainable methods of doing so, supported by Active Travel initiatives which also focus on the promotion of exercise and better physical and mental health. The reduction in the provision of car parking can encourage occupants not to be so reliant on private transport. As each apartment has notionally at least one car parking space, there will not be a significant impact from an increase in on street car parking as a result of this development and in respect of these demands, it is considered that the development represents an acceptable compromise. The development will also incorporate a range of other initiatives - welcome packs, the promotion of car sharing, information on public transport - all to discourage the use of the private motor vehicle.
5.6 Impact on neighbours
5.6.1 All of the buildings surrounding the site have windows looking towards the site. Imperial Heights and Imperial Lodge, 1, Rowany Villas, Eastfield House and Royal Shore Apartments have dining rooms, bedrooms, kitchen and bathroom windows looking towards the site. Imperial Heights and Imperial Lodge were approved when the Ocean Castle Hotel was in situ with all of the windows it contained in its side elevations. Royal Shore was approved following the demolition of the Ocean Castle Hotel and its proposed replacement with 7 apartments. This permission was not implemented.
5.6.2 It is notable that all of the kitchen windows facing the site in the rear part of Imperial Heights have the lower section obscured and the first four floors of windows had blinds or curtains partially or totally closed on a very sunny day in mid June (19.06.23) which is similar to the image in Google Streetview which is dated 2010 - see below). The proximity of these windows to the highway and the access road also result in reduced privacy for these rooms, at least in the lower floors.
5.6.3 There is 13.7m between the Royal Shore northern elevation and the southern elevation of the proposed building and 14m between the southern elevation of Imperial Heights and the northern elevation of the proposed building. This compares favourably with the 5m distance between the southern elevation of Royal Shore and the northern elevation of Princess Towers. The distance between the northern elevation of Imperial Heights and the southern elevation of Erin Court is a little over 3m.
Sarah Corlett Town Planning Consultancy Ltd Registered address: Ballachrink Croft, Ballacorey Road, Bride, Isle of Man IM7 4AW t: 07624 485517 e: [email protected] w: www.sarahcorlett.com Directors: Sarah Elizabeth Corlett Nicola Jane Corlett
Company Registration 134325C
Imperial Heights June 2023 Imperial Heights Google Streetview 2010
5.6.4 The windows in the sides of the proposed building on floors G-4 which look towards Imperial Heights and Royal Shore serve a lounge (secondary window), small window serving a dining area, a kitchen, a bathroom or utility and two bedrooms.
5.6.5 The lower floors of the Royal Shore apartments which front onto the side of the proposed building have windows which face the proposed development and these windows serve two bedrooms, a bathroom, a kitchen two dining/lounge windows one of which is a secondary window. Imperial Heights apartments have a large lounge/dining area on each floor in the elevation closest to the application site which has three windows contained within the bay with a kitchen and another lounge window directly facing the proposed building and a bedroom window beside this.
5.6.6 The Residential Design Guide defines habitable rooms as being primary, secondary or non habitable. Similarly windows are classified as being primary or secondary. Primary habitable rooms are living rooms, dining rooms and kitchens which include dining facilities: stand alone kitchens and bedrooms are secondary habitable rooms whilst bathrooms and utility rooms are non-habitable. In
Sarah Corlett Town Planning Consultancy Ltd Registered address: Ballachrink Croft, Ballacorey Road, Bride, Isle of Man IM7 4AW t: 07624 485517 e: [email protected] w: www.sarahcorlett.com Directors: Sarah Elizabeth Corlett Nicola Jane Corlett
Company Registration 134325C
A photograph showing the blue exterior facade of a multi-story building with white window frames and a temporary construction fence in the foreground.A low-angle photograph of a tall, white multi-story building with a sign reading 'Imperial Heights' at the base, set against a blue sky.
this, case there are primary habitable rooms (lounges and dining areas) which will be overlooked by other primary habitable rooms (lounges and dining areas) although the primary views and largest lounge windows in all three buildings are from the front of the building, looking out over the bay. The windows in the side elevations are considered to be very much secondary although still provide a view.
5.6.7 As a result of this proximity the windows in the proposed building which face Imperial Heights and Royal Shore are relatively modest in width and height - the largest being the secondary window serving the lounge. The sloping nature and levels of the building also assist to mitigate any impact, resulting in windows in adjacent buildings being at different levels to each other.
5.6.8 The design of any new building takes into account not only the comfort and amenity of its occupants but also the impact it will have on adjacent buildings and also the visual impact which the foregoing factors will have. The context of a site is particularly important and often establishes a standard of what may be expected in terms of proximity, height and style of buildings. For example, in an historic town such as Peel or Castletown, the design standards expected in new build estates are unlikely to be achieved. The charm and interest of such historic places is due to the intimate nature of the buildings, streets and functions with lower levels of privacy and outlook.
5.6.9 In this case, the context of the site is a Victorian promenade characterised by large and tall, imposing buildings with their primary frontage facing out across the bay. The side and rear elevations
Sarah Corlett Town Planning Consultancy Ltd Registered address: Ballachrink Croft, Ballacorey Road, Bride, Isle of Man IM7 4AW t: 07624 485517 e: [email protected] w: www.sarahcorlett.com Directors: Sarah Elizabeth Corlett Nicola Jane Corlett
Company Registration 134325C
A photograph showing a modern multi-story apartment building with white and grey cladding and glass balconies, situated next to an older white house with construction fencing in the foreground.
are designed to be less interesting, less detailed and more functional, due to the proximity of the adjacent rear service lanes. It should be noted that historically the hotels had significant numbers of windows in their side elevations within considerably more potential for overlooking across short distances.
Sarah Corlett Town Planning Consultancy Ltd Registered address: Ballachrink Croft, Ballacorey Road, Bride, Isle of Man IM7 4AW t: 07624 485517 e: [email protected] w: www.sarahcorlett.com Directors: Sarah Elizabeth Corlett Nicola Jane Corlett
Company Registration 134325C
A photograph showing a large, white, multi-story building (resembling a hotel) with construction fencing and groundworks in the foreground.A Google Street View photograph showing the exterior of the large white 'Port Erin Royal' building, likely a hotel, situated on a slope with a grassy bank and white boundary walls in the foreground.
5.6.10 As such, in order to maintain the architectural character of the promenade, any building on this site will need to maintain the presence of that previously constructed and what has been developed on each side, acknowledging the stepping down of the promenade in general. Historically and currently also the side elevations have interest due to the incorporation of windows rather than having blank facades. The original relationship of the Ocean Castle and Royal Shore hotels was as shown below albeit they were used for tourist accommodation - not permanent living space and the relationship of the Royal Hotel with its neighbours is shown in the two photographs above.
5.6.11 The existing relationships between buildings on the promenade and their neighbours are generally not in accordance with the recommended distances in the RDG as may be seen in the following photographs. This is due to the historical layout of the promenade in blocks separated by lanes and streets. Each block had a significant building, often extending in a substantial form to the rear. All subsequent development has generally followed this historical layout and form. It would not be possible to design a new building on this site which reflected this historical form and appearance whilst adhering to the standards contained in the Residential Design Guide and indeed, the historical and recently approved promenade buildings fail to meet these modern standards.
Sarah Corlett Town Planning Consultancy Ltd Registered address: Ballachrink Croft, Ballacorey Road, Bride, Isle of Man IM7 4AW t: 07624 485517 e: [email protected] w: www.sarahcorlett.com Directors: Sarah Elizabeth Corlett Nicola Jane Corlett
Company Registration 134325C
A photograph showing the exterior facade of the Port Erin Royal Hotel and The Scenic Castle Hotel, featuring white stone architecture and bay windows.
Sarah Corlett Town Planning Consultancy Ltd Registered address: Ballachrink Croft, Ballacorey Road, Bride, Isle of Man IM7 4AW t: 07624 485517 e: [email protected] w: www.sarahcorlett.com Directors: Sarah Elizabeth Corlett Nicola Jane Corlett
Company Registration 134325C
A street-level photograph showing modern multi-story apartment buildings with balconies and bay windows. A white boundary wall runs along the foreground in front of the development.A street-level photograph showing a modern multi-story building with glass balconies and dark cladding adjacent to a traditional white building with a pitched roof. The foreground features a paved area with a small plant and a white boundary wall.A street-level photograph showing two large, white multi-story apartment blocks flanking a road under a cloudy sky.
Sarah Corlett Town Planning Consultancy Ltd Registered address: Ballachrink Croft, Ballacorey Road, Bride, Isle of Man IM7 4AW t: 07624 485517 e: [email protected] w: www.sarahcorlett.com Directors: Sarah Elizabeth Corlett Nicola Jane Corlett
Company Registration 134325C
A street-level photograph showing existing buildings on a sloping road, including a blue building labeled 'Princess Colours' on the left and a cream building with balconies labeled 'Spice Egg Delicacy' on the right.A street-level photograph showing a multi-story white and blue apartment building labeled 'Princess Colleen' alongside a beige building labeled 'Snaefell House' in a coastal town setting.
5.7 Access and egress
A street-level photograph showing white residential buildings, including a modern block with balconies on the left and a building with a turret on the right.
5.7.1 The application is supported by a Transport Assessment prepared by Bryan G Hall which describes the proposal in highway terms and concludes that there would be no adverse impact on highway safety as a result of the proposed development.
5.8 Affordable housing
5.8.1 The site is identified as an Unoccupied Urban Site and is a prominent one in an important promenade streetscene and whose development would satisfy all of the policies which promote sustainable and brownfield development. Increasing building costs have resulted in the viability of the scheme being threatened and in addition, communal living accommodation such as this brings with it maintenance fees which may be unaffordable for those who need to utilise the House Purchase Assistance Scheme to obtain their own home. Many brownfield redevelopment proposals are more problematic and less economically viable than Greenfield sites, which is acknowledged in the Government’s Island Infrastructure Scheme which provides financial assistance towards bringing these identified sites forward.
5.8.2 The applicant is in discussion with the Department for Infrastructure Housing Directorate regarding affordable housing obligations. It is considered that the scheme is not suitable for on-site
Sarah Corlett Town Planning Consultancy Ltd Registered address: Ballachrink Croft, Ballacorey Road, Bride, Isle of Man IM7 4AW t: 07624 485517 e: [email protected] w: www.sarahcorlett.com Directors: Sarah Elizabeth Corlett Nicola Jane Corlett
Company Registration 134325C
affordable units and that providing a commuted sum may be more appropriate in this instance. Negotiations are ongoing, the result of which will be set out in a Section 13 Agreement.
5.9 Public open space
5.9.1 Public Open Space is required to be provided by Recreation Policy 3. Specifically, the breakdown in terms of the different types of POS is as follows: 1,449 sq m of formal open space, 483 sq m of children’s play space and 644 sq m of amenity space. The layout to provide around 224 sq m of landscaped amenity space in the private courtyard.
5.9.2 Whilst not in full compliance with the recommended level of provision, the layout, and the provision of POS in this application is not dissimilar to that provided in Royal Shore Apartments. When that application was approved, it was accepted that the Strategic Plan recommends when assessing the amount of POS required, that consideration should be given to the potential occupancy of the units, the proximity and availability of existing Open Space, including the foreshore, public glens and parks, and school fields which may be available for public use outside of school hours (paragraph 10.3.7) and that the exact open space requirement will depend on the individual circumstances and nature of each planning application (Appendix 6).
5.9.3 In this case the site is directly opposite a significant area of POS (the brooghs) with convenient access to the beach, the headland, the golf course, Bradda Head and Glen - all of which were taken into account in the determination of the Royal Shore development and deemed by the planning authority and the local authority, sufficient to not require the full amount of POS required by the Strategic Plan. In addition, the development is unlikely to result in families occupying the building so the need for the provision of children’s play facilities is unlikely to be generated by the development.
5.9.4 Discussions with the local authority have indicated that they would wish for a contribution to POS to be made and these negotiations are ongoing. Any contribution will be delivered as part of a Section 13 Agreement.
5.10 Provisions for energy efficiency and combatting Climate Change
5.10.1 An energy statement accompanies this application and highlights the high performing fabric, passive design to reduce the need for heating, lighting, cooling and ventilation, the incorporation of Air Source Heat Pumps, roof mounted solar PV panels and Mechanical Ventilation Heat Recovery systems throughout which will provide an efficient and low carbon development.
5.11 Conclusion
5.11.1 This development is a low carbon, highly finished and well designed apartment building which will provide 38 apartments in a highly sustainable location and which optimises the use of the site. This development will contribute to the visual completion of the promenade and the utilisation of an
Sarah Corlett Town Planning Consultancy Ltd Registered address: Ballachrink Croft, Ballacorey Road, Bride, Isle of Man IM7 4AW t: 07624 485517 e: [email protected] w: www.sarahcorlett.com Directors: Sarah Elizabeth Corlett Nicola Jane Corlett
Company Registration 134325C
Unoccupied Urban Site. The design of the development will complement the varied architecture of the promenade, continuing the natural stepping down in the height of buildings along the roadside. All of the apartments will have an attractive outlook with the majority having a sea view and balcony. There is also a central landscaped communal area for private amenity.
5.11.2 The development will provide a range of apartment types and sizes, adding to the variety of accommodation available in this Service Centre and in compliance with Spatial Policy 2. It has been designed to take into account its physical and spatial context whilst car parking provision considers and responds to the site’s sustainable location and its physical constraints.
5.11.3 Pre-application discussions were undertaken with the Planning and Building Control Directorate and other statutory consultees including Manx Utilities, Department for Infrastructure, Department of Environment, Food and Agriculture’s Ecosystems Policy Office and the local authority.
5.11.4 We believe that the proposed development broadly complies with policies and guidance of the Isle of Man Strategic Plan and the Area Plan for the South as well as delivering the development of an Unoccupied Urban Site whose development would be of significant visual and social benefit to the village.
5.11.5 Whilst the full complement of Public Open Space is not being provided, the site is immediately adjacent to significant areas of existing public open space and such as the beach, Bradda Head and Glen all within a few minutes’ walking distance.
5.11.6 We believe this development will be highly beneficial to Port Erin and will continue to support sustainable brownfield development thus reducing the need for development outside of settlements and on undeveloped land. On this case and with regard to the forgoing the applicant consider that the proposals should be supported.
Sarah Corlett 6th November, 2023
Sarah Corlett Town Planning Consultancy Ltd Registered address: Ballachrink Croft, Ballacorey Road, Bride, Isle of Man IM7 4AW t: 07624 485517 e: [email protected] w: www.sarahcorlett.com Directors: Sarah Elizabeth Corlett Nicola Jane Corlett
Company Registration 134325C
Appendix One - Strategic Plan Policies
Strategic Policy 1: Development should make the best use of resources by:
(a) optimising the use of previously developed land, redundant buildings, unused and under-used land and buildings, and reusing scarce indigenous building materials;
(b) ensuring efficient use of sites, taking into account the needs for access, landscaping, open space and amenity standards; and
(c) being located so as to utilise existing and planned infrastructure, facilities and services.
Strategic Policy 3: Proposals for development must ensure that the individual character of our towns and villages is protected or enhanced by:
(a) avoiding coalescence and maintaining adequate physical separation between settlements; and
(b) having regard in the design of new development to the use of local materials and character.
Strategic Policy 4: Proposals for development must:
(a) Protect or enhance the fabric and setting of Ancient Monuments, Registered Buildings(1), Conservation Areas(2) , buildings and structures within National Heritage Areas and sites of archaeological interest;
(b) protect or enhance the landscape quality and nature conservation value of urban as well as rural areas but especially in respect to development adjacent to Areas of Special Scientific Interest and other designations; and
(c) not cause or lead to unacceptable environmental pollution or disturbance.
Strategic Policy 5: New development, including individual buildings, should be designed so as to make a positive contribution to the environment of the Island. In appropriate cases the Department will require planning applications to be supported by a Design Statement which will be required to take account of the Strategic Aim and Policies.
Strategic Policy 10: New development should be located and designed such as to promote a more integrated transport network with the aim to:
(a) minimise journeys, especially by private car;
(b) make best use of public transport;
(c) not adversely affect highway safety for all users, and
(d) encourage pedestrian movement.
Spatial Policy 2: Outside Douglas development will be concentrated on the following Service Centres to provide regeneration and choice of location for housing, employment and services
Sarah Corlett Town Planning Consultancy Ltd Registered address: Ballachrink Croft, Ballacorey Road, Bride, Isle of Man IM7 4AW t: 07624 485517 e: [email protected] w: www.sarahcorlett.com Directors: Sarah Elizabeth Corlett Nicola Jane Corlett
Company Registration 134325C
•Ramsey
•Peel
•Port Erin
•Castletown
•Onchan
Area Plans will define the development boundaries of such centres so as to provide a range of housing and employment opportunities at a scale appropriate to the settlement.
General Policy 2: Development which is in accordance with the land-use zoning and proposals in the appropriate Area Plan and with other policies of this Strategic Plan will normally be permitted, provided that the development:
(a) is in accordance with the design brief in the Area Plan where there is such a brief;
(b) respects the site and surroundings in terms of the siting, layout, scale, form, design and landscaping of buildings and the spaces around them;
(c) does not affect adversely the character of the surrounding landscape or townscape;
(d) does not adversely affect the protected wildlife or locally important habitats on the site or adjacent land, including water courses;
(e) does not affect adversely public views of the sea;
(f) incorporates where possible existing topography and landscape features, particularly trees and sod banks;
(g) does not affect adversely the amenity of local residents or the character of the locality;
(h) provides satisfactory amenity standards in itself, including where appropriate safe and convenient access for all highway users, together with adequate parking, servicing and manoeuvring space;
(i) does not have an unacceptable effect on road safety or traffic flows on the local highways;
(j) can be provided with all necessary services;
(k) does not prejudice the use or development of adjoining land in accordance with the appropriate Area Plan;
(l) is not on contaminated land or subject to unreasonable risk of erosion or flooding;
(m) takes account of community and personal safety and security in the design of buildings and the spaces around them; and
(n) is designed having due regard to best practice in reducing energy consumption.
Environment Policy 22: Development will not be permitted where it would unacceptably harm the environment and/or the amenity of nearby properties in terms of:
i) pollution of sea, surface water or groundwater;
ii) emissions of airborne pollutants; and
iii) vibration, odour, noise or light pollution.
Sarah Corlett Town Planning Consultancy Ltd Registered address: Ballachrink Croft, Ballacorey Road, Bride, Isle of Man IM7 4AW t: 07624 485517 e: [email protected] w: www.sarahcorlett.com Directors: Sarah Elizabeth Corlett Nicola Jane Corlett
Company Registration 134325C
Environment Policy 42: New development in existing settlements must be designed to take account of the particular character and identity, in terms of buildings and landscape features of the immediate locality. Inappropriate backland development, and the removal of open or green spaces which contribute to the visual amenity and sense of place of a particular area will not be permitted. Those open or green spaces which are to be preserved will be identified in Area Plans.
Environment Policy 43: The Department will generally support proposals which seek to regenerate run-down urban and rural areas. Such proposals will normally be set in the context of regeneration strategies identified in the associated Area Plans. The Department will encourage the re-use of sound built fabric, rather than its demolition.
Housing Policy 5: In granting planning permission on land zoned for residential development or in predominantly residential areas the Department will normally require that 25% of provision should be made up of affordable housing. This policy will apply to developments of 8 dwellings or more.
Housing Policy 6: Development of land which is zoned for residential development must be undertaken in accordance with the brief in the relevant area plan, or, in the absence of a brief, in accordance with the criteria in paragraph 6.2 of this Plan. Briefs will encourage good and innovative design, and will not be needlessly prescriptive.
Transport Policy 1: New development should, where possible, be located close to existing public transport facilities and routes, including pedestrian, cycle and rail routes.
Transport Policy 4: The new and existing highways which serve any new development must be designed so as to be capable of accommodating the vehicle and pedestrian journeys generated by that development in a safe and appropriate manner, and in accordance with the environmental objectives of this plan.
Transport Policy 6: In the design of new development and transport facilities the needs of pedestrians will be given similar weight to the needs of other road users.
Transport Policy 7: The Department will require that in all new development, parking provision must be in accordance with the Department’s current standards.
The standards for new housing is generally one space per one bed apartment and two spaces for apartments with two bedrooms or more.
These standards may be relaxed where development:
Sarah Corlett Town Planning Consultancy Ltd Registered address: Ballachrink Croft, Ballacorey Road, Bride, Isle of Man IM7 4AW t: 07624 485517 e: [email protected] w: www.sarahcorlett.com Directors: Sarah Elizabeth Corlett Nicola Jane Corlett
Company Registration 134325C
(a) would secure the re-use of a Registered Building or a building of architectural or historic interest; or
(b) would result in the preservation of a sensitive streetscape; or
(c) is otherwise of benefit to the character of a Conservation Area.
(d) is within a reasonable distance of an existing or proposed bus route and it can be demonstrated a reduced level of parking will not result in unacceptable on street parking in the locality.
Transport Policy 8: The Department will require all applications for major development to be accompanied by a Transport Assessment.
Recreation Policy 3: Where appropriate, new development should include the provision of landscaped amenity areas as an integral part of the design. New residential development of ten or more dwellings must make provision for recreational and amenity space in accordance with the standards specified in Appendix 6 to the Plan.
Community Policy 11: The design and use of all new buildings and of extensions to existing buildings must, as far as is reasonable and practicable, pay due regard to best practice such as to prevent the outbreak and spread of fire.
Energy Policy 5: The Department will prepare a Planning Policy Statement on Energy Efficiency. Pending the preparation and adoption of that PPS the Department will require proposals for more than 5 dwellings or 100 square metres of other development to be accompanied be an Energy Impact Assessment.
The Department has also recently amended its guidance on the submission of applications to include the following:
Sustainable Construction In light of the above, it is helpful to consider at the planning stage any specific design choices or approaches that are necessary to achieve the relevant SAP score. Such considerations can be detailed in design statements or other supporting information as they may be relevant for explaining how a development complies with requirements for energy efficiency (Strategic Plan General Policy 2(n) or, for larger developments, the Energy Impact Assessment (Strategic Plan Energy Policy 5). Section 2 of the Residential Design Guide gives more information in relation to Energy Impact Assessments and also wider elements of Sustainable Construction.
Sarah Corlett Town Planning Consultancy Ltd Registered address: Ballachrink Croft, Ballacorey Road, Bride, Isle of Man IM7 4AW t: 07624 485517 e: [email protected] w: www.sarahcorlett.com Directors: Sarah Elizabeth Corlett Nicola Jane Corlett
Company Registration 134325C
Copyright in submitted documents remains with their authors. Request removal
Source & Provenance
Official reference
23/01348/B
Source authority
Isle of Man Government Planning & Building Control