Loading document...
Department of Planning
DEFA
Murray House
Mount Havelock
Douglas
Isle of Man
IM1 2SF
21st July 2020
Dear Sir / Madam,
Re: Detailed planning application for development of 11 residential properties within the residential garden of Bix House, Farm Hill Lane, Farm Hill, Douglas, Isle of Man, including site infrastructure and landscaping works.
The following information is provided in support of this planning application.
The proposed site is identified in the Douglas Local Plan – 1998, as partly for 'Predominately Residential Use' and partly as 'Private Woodland';
Extract from the Douglas Local Plan - 1998
The proposed site is a section of the garden of Bix House, Farm Hill Lane. It is proposed that Bix House will be retained with a reduced, but still generous, sized garden, leaving the rest of the garden as a development site including the retention of a large wooded area to the north east. The proposed site sits adjacent to Farmhill Grange- a development of 16 homes, including first time buyers, recently approved under PA 19/01408/8 and now under construction. The proposed development would-be serviced and accessed off the adjacent development.
The following image shows the relationship of the various parcels of land:


Area A Main site area approved under PA 19/01408/8, for 16 dwellings. Area B Area of access road upgrade to serve Area A, already approved Area C Main development area for this current planning application Area D Semi natural woodland, to be retained - Farmhill Woods Wildlife Site Area E Reduced Bix House curtilage.
The current extent of Bix House consists of Areas C, D \& E and has an overall area of 2.76acres. The proposed site, the subject of this planning application, is the rear garden of Bix House, Areas C \& D, and will have an area of 2.27 acres.
The site is currently a mixture of formal garden and borders with a small plantation- planted as a nursery during the 1980's in the centre. This is not registered woodland and has been recorded as of limited value. The proposals include the removal of the 1980s' plantation to open up the centre of the site for development. The proposals also include the replacement of the large Leylandii hedge on the northern boundary with a native Hornbeam hedge.
An Arboriculture Impact Assessment for the site has been produced by Manx Roots, and is included as part of this planning application.
The central tree plantation is referenced as Group 4 within the AIA and is described as; 'Copse in centre of lawn comprising around 100no. young to middle age trees planted very close together. Horse chestnut, sycamore and cherry forming majority of group and largest trees average 200-300mm diameter. Remaining species in smaller numbers and sizes. Dense unmanaged planting has resulted in tall, thin, top heavy specimens of low individual value (C/U) and generally unsuitable as standalone trees. Central planting appears in rows, presumably once creating an avenue. Loss of edge trees likely to lead to wind throw of interior trees. Collective value higher (B) due to wildlife and aesthetic value.'
The Leylandii hedge on the northern boundary, is referenced in the AIA as G5, and is described in the AIA, as; 'Group comprising of 28no cypress and 1no. copper beech (2526), 1 no. small horse chestnut and 1no small field maple. Cypress planted as hedge, now lapsed and showing typical compression unions throughout. Some evidence of leader failure. Good vitality. Unsuitable for retention if land use changes.'
1.
CONSULTATION
Prior to design commencement, and continuing through the design stage, the following parties were consulted with regards to the acceptability of the development, particularly with regards to the removal of the central tree plantation;
A site meeting was held on the 2nd April 2019 with Mr Andrew Igoea, Ms Sophie Costain and Mr Ben Brooker, to discuss the possibility of removing the clump of garden trees in the centre of the lawn and for the Registered wood to be transferred to 'public' ownership, i.e. adopted by Douglas Council as Public Open Space. Both Mr Igoea and Mr Brooker thought that the clump of trees had 'limited value', in terms of the quality of the trees, so they had no issue with their removal. Ms Costain suggested that a package of ecological mitigation measures would be required to be provided both within the area of Registered Woodland and within the design of the development, to offset the loss of the trees. Ms Costain suggested the best people to develop the ecological mitigation package, was Manx Wildlife Trust, as they had already carried a study of the Woodland Area and produced a PEA (Preliminary Ecology Assessment) for the adjoining site, Anacur House.
A site meeting was held on 4th April 2019 with Mr Chris Balmer and Mr Tim Graham to discuss the proposals and the points raised during the meeting of the 2nd April. The following points were noted;
Page 5 of 21
A site meeting was held on 15th July 2019 with Ms Dana Eynon & Mr David Hewes, of Douglas Borough Council, to brief them on the sketch proposals and ask for their support in adopting the woodland area. Following the meeting and after consulting his colleagues within Douglas Council, Mr Hewes advised that the Council were unable to adopt the woodland area, for the following reasons;
As a result of Douglas Council's reluctance to adopt the woodland area, the woodland is proposed to remain in private ownership, but will be open for 'controlled' public access, as suggested by Manx Wildlife Trust.
The woodland area has been excluded from the Public Open Space calculation for the proposed development, please see later sections dealing with Public Open Space provisions.
Page 6 of 21
PA96/01864/A - The most recent planning application for the proposed site was an approval in principle for three building plots, with access directly off Farm Hill Lane, with the new access between the existing Bix House dwelling and the south eastern boundary. The application was refused following an appeal. The following shows the site extent of that proposal;
Site area for PA96/01864/A
PA18/00862/B - Planning approval was granted for the Annacur House site, for the development of 16 homes, to the south of the current application site.
PA19/00957/B - A revised planning application for 18 homes on the Annacur House site, was withdrawn. This was due to a preference for 2 story rather than 2.5 story homes, as proposed by PA19/00957/B, and the potential of extending the development by this current application.
PA19/01408/B - Planning approval was granted for 16 homes on the Annacur House site, for a revised layout and house styles. This application provided for a future link to service and access the adjacent site and is now under construction.

This current application is for the development of the garden of Bix House, for 11 residential properties.
The 11 new homes will include 9no. $4 \& 5$ bed homes, some with integral garages, and 2no. 2 bed affordable homes. All properties will be provided with two off road car parking spaces and private gardens.
Proposed Site Plan
The proposed house styles are traditional in form and the use of different house types and different finishes within the same house type, will add variation and interest to the streetscape.
CGI Street views
The pallet of materials will include facing brickwork, painted rendered walls and pitched roofs and will generally be in keeping with the houses in the area.
The soft landscaping and new tree planting proposals are important aspects of these proposals, involving extensive consultations, as previously described.
The proposed new planting scheme, including native trees, has been developed with Manx Wildlife Trust and Manx Roots, to offset the removal of the tree plantation from the centre of the garden.
The amenity space being proposed will provide a green setting for the homes and the new tree and hedge planting will provide new natural habitats.
The proposed additional mixed native woodland edge planting, shown on the Planting Proposal produced by Manx Roots, will provide additional natural habitat and improve the Woodland setting.

A footpath will be provided along the southern boundary of the woodland, to link the proposed residential development with the Lheannag Park Estate and Ballaughton Park in the east.
The current north west boundary consists of a very tall Leylandii hedge (see group G5 in the AIA produced by Manx Roots). The hedge has reached a size where it is now overbearing and casts deep shadows into the garden of the neighbouring property, almost reaching the gardens full width during the winter months;
Image showing shadow cast of Leylandii hedge over garden of No.38 Farmhill Park. The AIA's conclusion with regards to the existing Leylandii hedge, was that it was 'unsuitable for retention if land use changes'.
The proposed works include the removal of the Leylandii hedge and replacing this with a continuous native Hornbeam hedge. Not only will this hedge be more attractive and provide better ecological habitat, it will also be less overbearing on both sides of the boundary and reduce shadow cast. The dense foliage will provide privacy between neighbouring properties.

Image of typical Hornbeam hedge
Access to the proposed site will be from the south east, via the adjacent Angacur House site;

Approved planning application PA 19/01408/B, included a road layout which provides access through the southern boundary of the proposed site;
All the proposed dwellings will be provided with 2 no. off road car parking spaces and cycle storage can be accommodated in all properties, either in garages, or in cycle storage sheds in the garden.
A comprehensive Highways Statement has been produced by iTransport, which includes vehicle tracking diagrams, is included as part of the planning application, and demonstrates that the proposals are acceptable in highway access terms.

We have written to the owners/occupiers of neighbouring properties, informing them of our intention to submit a planning application and asking for dialogue. Generally, those neighbours that responded suggested they would oppose development.
We have tried to be sympathetic with our proposals and relaxed our proposed density from much higher density potential schemes which included demolition of Bix House and more than double the number of properties proposed by this application. Whilst Strategic Policy requires making the best use of available resource, we feel that the lower density of our proposals would suite this site better.
As stated above the existing Leylandii hedge boundary on the North West Boundary will be replaced with a continuous Hornbeam hedge. It is also proposed that Hornbeam will also be used on other property boundaries;
The North West boundary is also screened by 3no. existing Cherry trees on the site side. These trees will be retained and the Hornbeam hedge would be continued fully along this section of the boundary.
The South West boundary of the site, will be unchanged and will be reinforced by continuing the Hornbeam Hedge.
The new boundary between Bix House and the proposed site will be formed by a Hornbeam Hedge, for consistency.
The boundary to the southern end of the south west boundary will be dealt with as previous agreed i.e. tall timber fence backed by a planted hedge.
Page 13 of 21
Proposed Site Plan shows tree and hedge planting scheme.
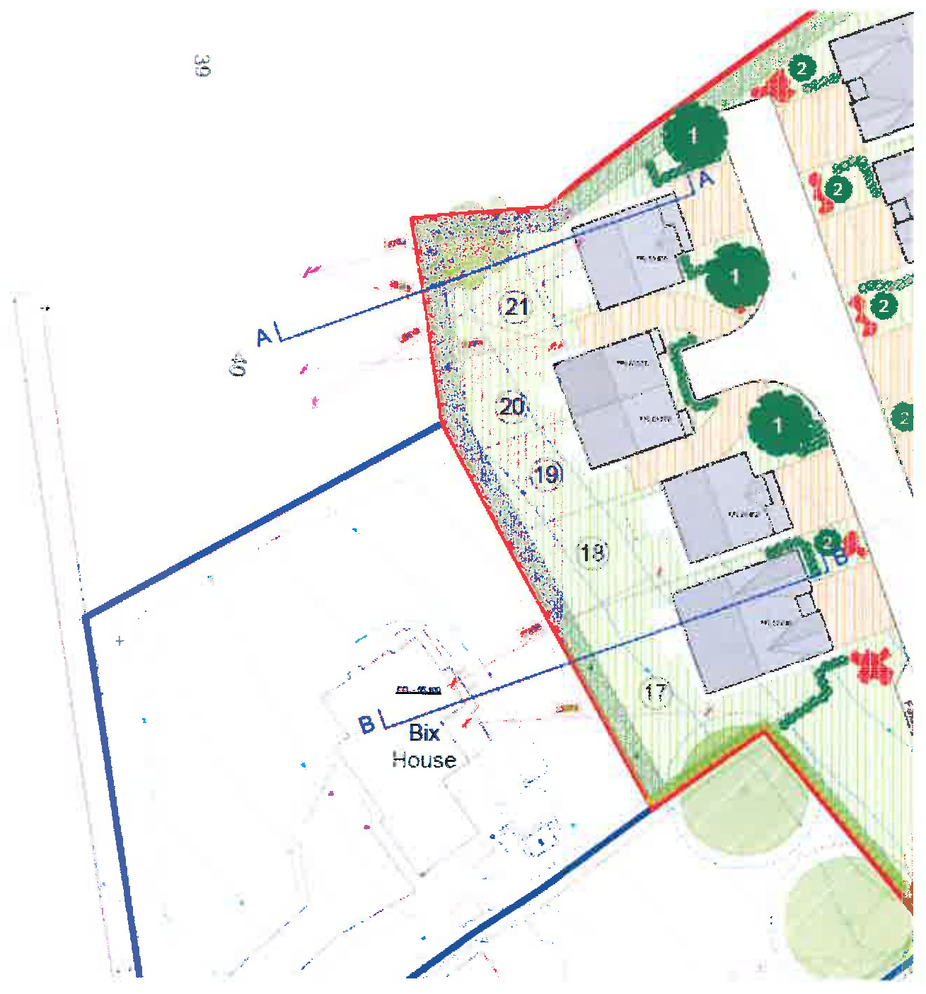
In addition to the use of boundary planting, separation distances between proposed and existing dwellings will comply with the standards set out in the 'Residential Design Guide' published by the planning department. As an example, with reference to the drawing below, the separate distance between the neighbouring property and the proposed dwelling on Plot 20, is over 23 m .

Page 15 of 21

Section A-A 1:200
I addition to the layout providing acceptable separation distances, the proposed site is also sloping away from the existing houses, meaning the existing houses will maintain an elevated position. As an example, the finished ground floor level of the neighbouring property will be well over 3 m higher than the finished ground floor level of the proposed house on plot 20. To put this into context, 3 m equates to one storey in height.


Whilst it is understandable that adjacent property owners may not like new development close to their properties, the nature of sustainable development means that it should be located close to existing services, which invariably means that it is close to existing housing.
To satisfy the requirement for affordable homes, 25% of the 11no. houses would need to be provided as affordable homes, which equates to 2.75 homes. We have consulted with Mr Brett Woods, of the Department of Infrastructure Housing Division, and he has confirmed that the Department would accept the 2no. Affordable Housing Units together with a Commuted Sum of £30,000, to cover the remaining 0.75 units, as satisfying the 25% requirement. This can be secured by entering into a Section 13 agreement.
The 2no. affordable homes being proposed, will be in addition to the 4no. affordable homes being provided as part of the adjacent Farmhill Grange development that Hartford Homes is building.
The 11no. plots that are being proposed, are for the following dwellings;
Using Appendix 6 of the IOM Strategic Plan, provides the following POS requirements for the 11 dwellings;
Page 17 of 21
| Formal | 550sqm |
| Play | 186sqm |
| Amenity | 248sqm |
| Total | 984sqm |
The proposed scheme provides approx. 588sqm of Public Open Space, as indicated hatched green on the following drawing, so there would be an under provision, in overall quantity, of approximately 396 sqm.
The 4621 sqm of existing woodland, indicated hatched blue, will also be open space, but will remain in private ownership. The woodland will remain intact as a natural habitat, as promoted by Manx Wildlife Trust. Whilst public access will not be limited, a new footpath along the southern boundary to connect the Public Open Space area to the existing residential estate to the south east of the woodland, will define the access route and provide connectivity.
Most of the Public Open Space provided by this proposal, will be classed as 'Amenity' space, meaning there will be a shortfall in 'Formal' \& 'Play' space. Mr Dave Hewes, of Douglas Borough Council, has been consulted on the provision of Public Open Space for a previous, but similar layout. He has expressed the preference not to have smaller play areas as these are disproportionately

harder to maintain for the Council. The Council prefers to concentrate their resources on larger, easier to maintain facilities, like Ballaughton Manor Park, which is very close by. Mr Hewes has also confirmed his willingness to accept a commuted sum to address any shortfall, which we are happy to be secured by entering into a Section 13 agreement as part of the planning approval. The commuted sum will be used to help maintain their existing nearby facilities, like Ballaughton Manor Park.
All required utilities and services are available within the adjacent site, Farmhill Grange, now under construction, to service the proposed development.
The Drainage authority have been consulted and an indicative underground drainage design is included within the planning application package. There is an existing storm water drain running through the proposed site, which will be re-routed as part of the works. There are no technical barriers to drainage of the site.
The following points are relevant to this application;
Page 19 of 21
RJRT004425666
The proposed site is zoned for residential use in the current Douglas Local Plan and also in the emerging Area Plan for the East.
Access to the proposed site is via the Farmhill Grange site, which is currently under construction and the Highway matters have been fully considered.
The tree plantation in the centre of the site is relatively young and has been assessed as having limited value. It has not been maintained and many most of the trees are off poor form. The removal of the plantation allows better planning for the development to proceed. This element of the proposal was fully consulted upon at the commencement of the project and it was with the agreement of all relevant stakeholders that the design was developed. Suitable ecological offsetting measures have been proposed by Manx Wildlife Trust and agreed by DEFA and these will be implemented as part of the development.
The proposed layout provides separation distances and privacy measures which exceed those set out in the 'Residential Design Guide' issued by the planning department. The Privacy of the neighbouring properties is also helped as the proposed site slopes away from the existing properties. Whilst it is understandable that adjacent property owners may not like new development close to their properties, the nature of sustainable development means that it should be located close to existing services, which invariably means that it is close to existing housing. The site is in a very sustainable location, set within a residential area with a school, shops, parks and access to public transport links close by, all of which can be access on foot.
The proposed development will be of high-quality design and construction, in keeping with Hartford Homes usual standards, and the range of houses will include affordable homes. The design of the houses will be similar to those found to be acceptable for the adjacent Anacur House site (now known as Farmhill Grange).
Overall, the proposed development will provide much needed additional family homes, including 2 no. affordable Homes, for the Douglas area, where the demand is highest.
Page 20 of 21
MNKOI 0000271657
We trust the above and enclosed information is sufficient for this application to be considered but should you have any questions, please do not hesitate to contact our offices.
Yours faithfully
George Li
For and on behalf of Hartford Ltd.
Copyright in submitted documents remains with their authors. Request removal