The Town and Country Planning (Development Procedure) Order 2005
Carl Jenkins Design 10 Church Street Peel Isle of Man IM5 1HL
In pursuance of powers granted under the above Act and Order the Department of Infrastructure does hereby APPROVE the following application made on behalf of:
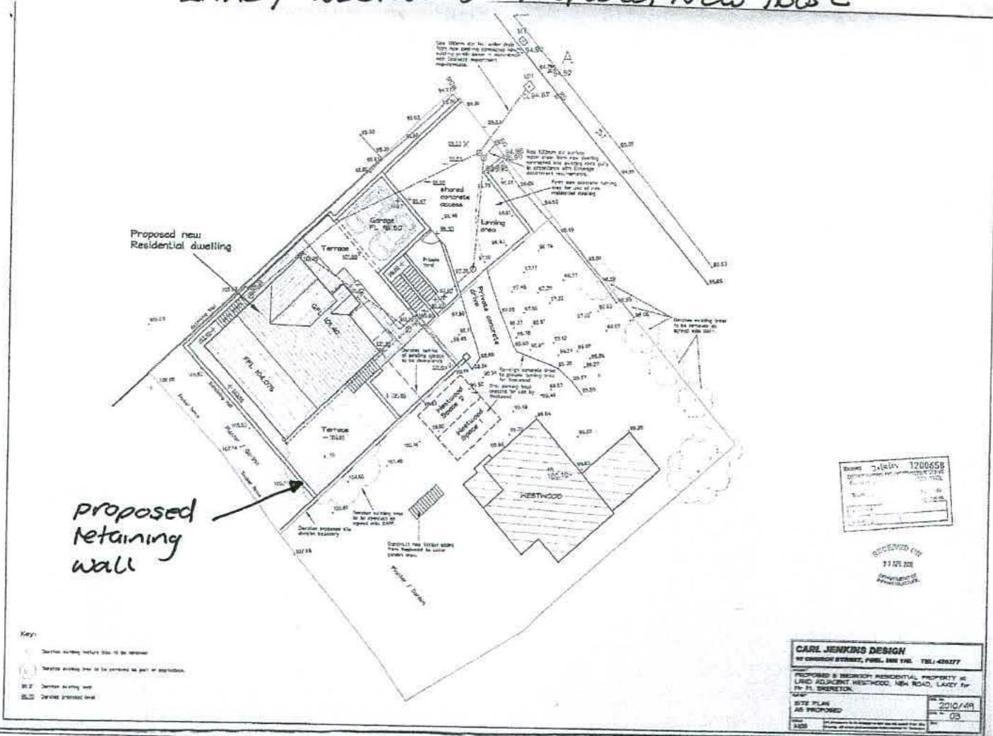
Name: Mr Mike Brereton Proposal: Erection of a detached dwelling at: Land Adjacent Westwood New Road Laxey Isle of Man
which was considered on 20th June 2012, subject to compliance with the conditions specified below.
Date of Issue: 20th June 2012
Murray House Mount Havelock Douglas
Mrs P Faragher Deputy Secretary to the Planning Committee
Schedule Of Conditions:
The development hereby permitted shall commence before the expiration of four years from the date of this notice.
This approval relates to drawing no.s SVY-1 rev. A, 01, 03, 04 and 05 date stamped the 30th April 2012.
Prior to the commencement of development details of a boundary fence between the application site and the adjoining property (Westwood) must be submitted to and agreed in writing by the Planning Authority. The agreed boundary fence shall be erected prior to the first occupation of the dwelling and maintained as such thereafter.
A black and white site plan showing the layout for proposed new residential dwellings, including access roads, a retaining wall, and boundary lines.Architectural drawing sheet displaying floor plans, elevations, and sections for a proposed detached residential property.
Copyright in submitted documents remains with their authors. Request removal
Source & Provenance
Official reference
14/00349/B
Source authority
Isle of Man Government Planning & Building Control