Ecology Vannin: 7-8 Market Place, Peel, Isle of Man.
Ecology Vannin: 7-8 Market Place, Peel, Isle of Man.
Job number:
24_32
Title:
Jurby Phase 2 Technical Note
Client:
Hartford Homes Ltd
Prepared by:
Sarah Hickey
Verified by:
Amy Dunderdale
Date of Issue:
August 2024
Version:
1
Revisions:
1
Status:
Final
This report is prepared by Ecology Vannin Consultancy Services for the sole and exclusive use of Hartford Homes Ltd and their contractors in response to their particular instructions. No liability is accepted for any costs, claims or losses arising from the use of this report or any part thereof for any purpose other than that for which it was specifically prepared or by any party other than Hartford Homes Ltd. Any biological records for wildlife found in survey will eventually be submitted to Manx Biological Recording Partnership.<br><br>Ecology Vannin Consultancy Services is the trading name for Wildlife Limited, Reg Company No: 077379C. Wildlife Limited is a wholly owned subsidiary of Manx Wildlife Trust (MWT), Reg Company No: 005297C.This report does not prevent MWT pursuing its charitable objectives in relation to planning. This report has been prepared by an environmental specialist and does not purport to provide legal advice. You may wish to take separate legal advice. The information which we have prepared and provided is true and has been prepared and provided in accordance with the BS42020 2013 and Chartered Institute of Ecology and Environmental Management’s Code of Professional Conduct and guidelines for preliminary ecological appraisals (CIEEM 2017). We confirm that the opinions expressed are our true and professional bona fide opinions.<br><br>Signed (Author) Signed (QA)<br><br>q<br><br>
Ecology Vannin Jurby Phase 2 2
Biographies
Sarah Hickey BSc (Hons) MRes, ACIEEM is an ecologist with several years’ experience in baseline ecological survey and assessment and specialist protected species surveys for bats, Common Lizard and Common Frog. Sarah holds a master’s degree in Research in the Natural Environment from the University of Edinburgh and has contributed to the Independent Climate Action Report for the IOM Government (Appendix 10 (a) Peatlands).
Amy Dunderdale BSc (Hons) MSc is an ecologist with several years’ experience in baseline ecological survey and assessment and some specialist protected species surveys including for bats and reptiles. Amy holds a Biology bachelors degree from the University of Durham and a masters degree in Wildlife Management and Conservation from University of Reading. She has experience working in ecology consultancy in the UK including experience in completing PEAs and BREEAM Land Use and Ecology reports.
2.0 Planning Conditions ....................................................................................................................4 APPENDIX I: Hartford Homes Wildlife Mitigation Plans w/ House Martin Nest Box Locations..............8
Ecology Vannin Jurby Phase 2 3
1.0 Introduction
1.1 Ecology Vannin was commissioned by Hartford Homes Ltd to produce a Technical Note to satisfy planning conditions 8, 9 and 10 of the approved planning application to erect 73 dwellings with associated access, parking, open space and landscaping at Fields 210401, 210403, 210451 & 210 Ballagarraghyn, Bretney Road, Jurby IM7 3ES (PA 22/01133/B).
1.2 This Technical Note provides details of mitigation and enhancement of the site for biodiversity.
2.0 Planning Conditions Planning Condition 8
2.1 ‘Prior to the commencement of the development hereby approved, details of the proposed lizard hibernacula as shown in the Detailed Landscape proposals shall be submitted to and approved in writing, including timescale for its construction and for seeding of the surrounding area. The hibernacula shall be constructed in accordance with the approved details and retained as such thereafter. Reason: To ensure that adequate ecological mitigation and enhancement is provided and maintained’.
2.2 To satisfy the above planning condition, three hibernacula suitable for Common Lizard Zootoca vivipara will be constructed within Field 210408. These will be constructed in accordance with Hartford Homes Phase 2 Wildlife Mitigation Sheet 3 of 3, drawing 157 (see Appendix I). The following guidance will be followed:
• The open face of the hibernacula will be south facing.
• The hibernacula will be constructed prior to the clearance of vegetation from the Phase 2 site.
• The grassland in this field will have 100mm of topsoil removed and will then be sown with a native mix of wildflowers and grasses or treated with green hay, from a species-rich donor site, to create a meadow (refer to paragraph 2.4 overleaf).
o The removal of vegetation and topsoil from this field and the other fields comprising this site will be done in one direction (west to east), carefully, to allow any lizards to move to suitable habitat.
• Hedgebanks surrounding this field will be retained to provide continuous habitat for Common Lizard.
Planning Condition 9
2.3 ‘Prior to the commencement of the development hereby approved, a New Technical Note covering the additional areas for Phase 2, which set out the long term maintenance and management of the open space and landscaped areas, taking into account the Preliminary Ecological Appraisal by Manx Wildlife Trust Consultancy Services, dated 15 June, 2022, in relation to 'Habitat' ; and, the 'Ecological Impact and Common Lizards Mitigation' (including provision for the area shown on the Detailed Landscape Proposals as "Species Rich Grassland/Wildflower Seeded
Ecology Vannin Jurby Phase 2 4
Areas" which contains the hibernaculum to be cut in early September and again in winter, on a rotational basis to maintain structural diversity for lizards and suitable habitat year-round), shall be submitted to and approved in writing by DEFA Planning. The site shall, thereafter, be maintained in accordance with the approved details. Reason: To ensure that adequate ecological mitigation and enhancement is provided and maintained’.
Field 210408 2.4 The following method will be used to create and maintain the meadow:
• Top soil will be removed to a depth of 100mm from the meadow area and placed in low mounds within the field to create a more interesting topography and lower the fertility of large parts of the meadow.
• The field will be covered ideally with green hay, or a suitable native grass and wildflower mix if green hay is not available.
o Green hay will be cut during the summer months, July and August, before the seed fall, and spread straight away.
o A nearby site rich in wildflowers would be ideal (for example, Jurby Airfield ASSI).
o If a seed mix is to be used, it will be sown during September or October.
o The planting of some ‘plug plants’ may help the initial establishment of vegetation. These should be of suitable species such as ox-eye daisy, cowslip, ragged robin, red campion, red clover, musk mallow, wild carrot, field scabious and greater knapweed.
o Important plants to include in the meadow are Birds-foot Trefoil, Red Clover, Knapweed, Oxeye Daisy and Yellow Rattle. If these are not included in the green hay mix, they should be sown or planted as plug plants.
• A butterfly bank will be created using crushed concrete or similar on top of a mound.
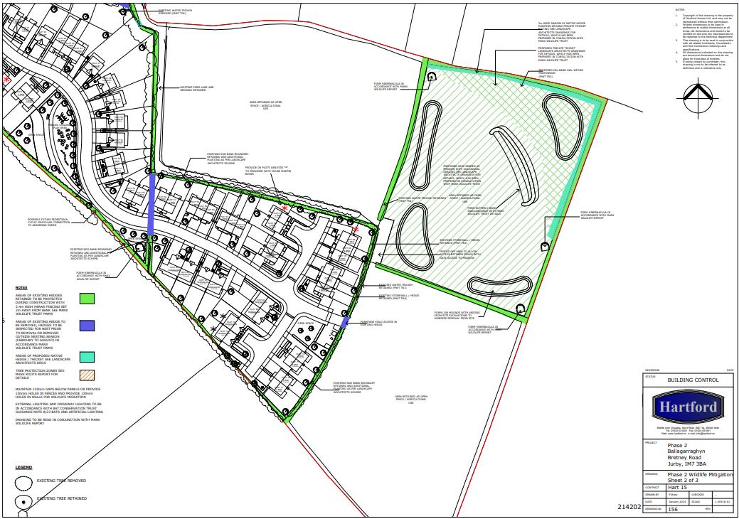
o the size and position of this mound will be as indicated on the Hartford Homes Phase 2 Wildlife Mitigation Sheet 2 of 3, drawing 156, Appendix.
o The construction of the butterfly bank will be as shown in Hartford Homes Phase 2 Wildlife Mitigation Sheet 2 of 3, drawing 157, Appendix.
• Once vegetation has become established, the meadow should be lightly grazed at a stocking density of 0.4 livestock units per hectare (0.4 LU/ha), except in May and June, when sheep should be removed.
o This level of grazing should be done for the first two years after the vegetation has become established.
o During subsequent years, there should be no grazing between March and September. Winter grazing should remain at a level of 0.4 LU/ha.
• If livestock are not available, the meadow will instead be cut in early September and over the winter months as required.
o All cuttings will be removed from the site to prevent an increase in soil fertility.
o A 3m buffer around the field margins will be cut on a three-year rotation, to promote structural diversity of the sward.
Ecology Vannin Jurby Phase 2 5
▪ Year 1 – the eastern boundary will be cut.
▪ Year 2 – the southern boundary will be cut.
▪ Year 3 – the western boundary will be cut.
2.5 The following method will be used to create and maintain the area of scrub in the north-eastern corner:
• Excess topsoil removed from the meadow area will be placed in the northeastern corner of the field prior to the planting of woody species.
• Woody species to be planted as per the Hartford Homes Detailed Landscape Proposals Sheet 2 of 2 (Appendix), except that Ulex Europaeus will be excluded from the mix.
• The area will be inspected on an annual basis during the summer months for five years. Any woody plants that have died will be replaced on a like-for like basis.
Species-rich grassland within the residential area
2.6 Species-rich grassland within the residential areas will be created and managed using the following guidance:
• Topsoil will be removed to a depth of 100mm.
• The area will be covered with green hay as detailed above or by the seed mix specified in Hartford Homes Detailed Landscape Proposals Sheet 1 of 2 (Appendix I).
• Once vegetation has established, these areas will but cut in early September and again through the winter months as required.
• There will be no cutting of these areas between April and August inclusive.
• All cuttings will be removed.
Planning Condition 10
2.7 ‘Prior to the commencement of the development, hereby permitted, all details proposed for wildlife mitigation, including house martin and collared dove, external boxes and hedgehog friendly fencing, shall be shown on an updated site plan, which shall be approved in writing by DEFA Planning. Subsequently, prior to the first occupation of any dwelling these measures shall be provided in accordance with the agreed details and shall thereafter be permanently retained and maintained. Reason: To ensure that adequate ecological mitigation and enhancement is provided and maintained’. House Martin
2.8 House Martin nest boxes will be placed at eaves level on the north-eastern elevation of four properties (see Appendix I). Swift
2.9 Swift bricks will be installed in each property as detailed in Hartford Homes Phase 2 Wildlife Mitigation Sheet 3 of 3 (Appendix I). Collared Dove
Ecology Vannin Jurby Phase 2 6
2.10 The retention and protection of trees in the northern part of the site will be adequate for nesting Collared Doves. Lighting in this area will be directional, away from the area of retained trees. Bee bricks
2.11 Bee bricks will be included in each new dwelling. They will be situated at a low level, but above one metre, on a southerly aspect. Hedgehogs
2.12 Fences will have a gap at the base of 130mm and walls will include 130mm gaps at the base to allow wildlife migration through the site, as detailed in Hartford Homes Phase 2 Wildlife Mitigation Sheet 1 of 3 (Appendix I).
Ecology Vannin Jurby Phase 2 7
APPENDIX I: Hartford Homes Wildlife Mitigation Plans w/ House Martin Nest Box Locations
A technical site plan illustrating the layout of a housing development with detailed landscaping zones, hedge retention areas, and wildlife mitigation measures.
Ecology Vannin Jurby Phase 2 8
Ecology Vannin Jurby Phase 2 9
A technical site plan showing a housing development layout with specific landscaping features, including lizard hibernacula and tree protection zones.
Ecology Vannin Jurby Phase 2 10
A technical drawing sheet detailing wildlife mitigation measures, featuring cross-sections of a hibernaculum and butterfly bank alongside photographs of completed structures and wildlife boxes.
Copyright in submitted documents remains with their authors. Request removal
Source & Provenance
Official reference
24/10090/AIR
Source authority
Isle of Man Government Planning & Building Control