Planning Statement In Support Of An Application For The Erection Of A Garage And Store, Ballig, Glen Mona, Maughold
1.0 INTRODUCTION
1.1 The site is the residential curtilage of an existing dwelling, Ballig, which sits on the western side of a minor road which links Glen Mona hamlet in the north with the A2 coast road in the south.
1.2 The dwelling is accessed from the minor road via a winding private road crossing a small ford: this drive serves only the application dwelling and its residential curtilage.
1.3 The site accommodates the existing dwelling and an existing outbuilding which sits to the south with two other small outbuildings to the west and south west. This is one of two original outbuildings on the site, the other having been demolished some time ago with a view of its replacement with a new garage (see Planning History). The building was demolished but that approved garage was not erected.
1.4 The site sits above the minor road but below the A2 and Manx Electric Railway. There are limited public views of the existing buildings from these places due to intervening trees and natural vegetation. There are a small number of places on the
A photograph showing an old stone barn structure adjacent to a modern white house with a driveway and parked car.
A2 from where, if one stopped and looked, a view of the house and/or the outbuilding could possibly be gained at a distance of at least 150m although it should be noted that there is no footway along the road and any view from a vehicle or the MER would be fleeting.
2.0 PLANNING POLICY
2.1 The site lies within an area which is not designated for a particular purpose on both the Isle of Man Planning Scheme (Development Plan) Order 1982 and the draft Area Plan for the North and West.
Isle of Man Planning Scheme (Development Plan) Order 1982
2.2 This shows the site as within an area of an area of High Landscape or Coastal Value and Scenic Significance, in between two lines of Woodland and with a site of archaeological interest circling the site in red.
Draft Area Plan for the North and West
2.3 This document has been passing through the process towards adoption since
Since then, the draft plan and a further Modified draft plan were published and the latter was the subject of a public inquiry in July 2024. The inspector reported on the plan in October 2024 and the Cabinet Office published this and its response to the recommendations early in 2025.
A close-up section of a site location map showing property boundaries, fields, and roads with red circles highlighting specific areas.
2.4 As the site lies within the countryside, the land use designation has changed relatively little in the emerging draft plan with the site still not designated for a particular purpose. The most significant change is that the areas of woodland, archaeological interest and ecological sensitivity, if they exist, are all now shown on various Constraints maps and the Area Plans no longer refer to areas of High Landscape or Coastal Value and Scenic Significance, instead referring to the Landscape Character Assessment of 2008.
2.5 The Environmental Constraints map accompanying the Area Plan shows the site
as outside of the area of ecological interest (see below) although the access is within this orange striped designation.
2.6 The Island Environment Map shows areas of Registered Trees, designated Wildlife Sites and statutorily protected areas. This shows nothing designated on or around the site.
2.7 The Infrastructure Constraints Map accompanying the Area Plan show no constraints directly applicable to the site but high voltage cables running to the east.
Landscape Character Assessment
2.8 This was a study commissioned by the Department in 2008. It aimed to ultimately replace the 1982 areas of High Landscape or Coastal Value and Scenic Significance and divided the areas of Island outside defined settlements into different categories of landscape type. The document also provides detailed guidance which was intended to be absorbed into planning policy.
2.9 The Area Plans have incorporated the findings of the Assessment into the Written Statements and contain proposals which transcribe the relevant parts of the Assessment into planning guidance.
2.10 The Assessment designates the area in which the site lies as the Ballajora and Ballaglass area of Incised Slopes (D1). The full description and guidance in the Assessment is set out at Appendix One of this document but is summarised in the draft Area Plan as follows:
Landscape Strategy:
To conserve and enhance:
a) The character, quality and distinctiveness of this area with its tranquil, relatively sparsely settled nature, its distinctive field patterns, its rural road network, its numerous areas of fragmented woodland and the setting of the various archaeological and historic features within the area.
Key views:
• Panoramic views to dramatic backdrop of rising uplands to the west.
• Panoramic, open views towards the sea, which is visible as a skyline feature to the east.
• Enclosed and channelled views along the corridors of Ballaglass Glen and Glen Mona.
2.11 The planning approval for the replacement of the dwelling on site was not subject to a condition which suspended the provisions of the Town and Country Planning (Permitted Development) Order 2025. As such, a garage and potentially other domestic structures are permitted to be erected without planning approval provided that they accord with the conditions of the Order.
3.0 PLANNING HISTORY
3.1 The existing house was permitted as a replacement of that which previously existed. This permission, 11/01007/B was granted and the dwelling was constructed.
3.2 Permission was then sought for the widening of the existing driveway (12/00153/ B).
3.3 12/01259/B sought permission for the erection of a replacement outbuilding to provide garaging and additional ancillary accommodation. This was permitted.
Architectural drawings displaying elevations and floor plans for a replacement garage and outbuilding.
3.4 This shows a single vehicle garage with a larger office alongside, an internal staircase to an upper floor contained within the roof and an external staircase accessing the ground behind. This relates to a building which existed at that time but which does not exist now. The outline of this building can be seen on the drawing below, dotted beneath the solid line of the proposed replacement building. The barn which is the subject of the current application is clearly shown to the south.
3.5 The planning officer reporting on this application states:
“As stated earlier in this report the application site is not zoned for development under the Isle of Man Planning Scheme (Development Plan) Provisional Order 1982. In planning terms the application site comprises the residential curtilage of an existing dwelling located within the countryside. Whilst planning policy sets out a general presumption against development in the countryside there are also planning policies that recognise the existence of dwellings in the countryside and allow related development such as the
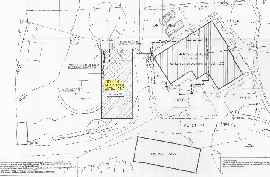
A site plan illustrating the layout of a rural property, highlighting the location of an existing barn and a proposed replacement outbuilding.
extension of such dwellings. Interestingly, there is no provision within planning policy for detached new build development within such residential curtilages but there has been a general acceptance of such development being appropriate provided it is to a suitable scale to the existing dwelling, for example a detached garage is generally seen as a reasonable expectation for an existing dwelling in the countryside. It is therefore considered that the planning application needs to primarily consider the impact of the proposed building on the rural amenity and the reasonableness of the proposed building.
The replacement dwelling, approved under previous planning application 11/01007/B and currently under construction, does not include any garaging either integrally or detached. During pre-application discussions the applicant indicated that they had initially wanted to use the existing building and looked
at its conversion. However, the dimensions and structure of the existing building does not lend itself to conversion to provide what is proposed within this planning application. The overall width of the existing building together with the width of the existing walls prevents viable use as garaging. The basis and need behind the proposed development is readily understandable.
In terms of impact, the site and buildings contained are quite well hidden in the landscape due to general topography and changes in levels between the Coast Road (A2) and the Glen Mona Loop Road. The roof of the existing building is partially visible from distance from the west on the Coast Road (A2). Whilst the increased width of the proposed building means that more roof may be visible it is considered that this increase and its impact on the landscape would be slight. The proposed building is sympathetically designed and should look very similar to the existing building when completed. Whilst a garage could be constructed within the application site under permitted development rights it is considered that such a garage would be more conspicuous within the landscape, and potentially more out of keeping with the rural amenity, than the building proposed by this planning application. The impact of the proposed building is not considered to be significantly greater than that of the existing
building, which is entirely appropriate to the rural location of the property. The proposal does not affect private amenity, highway safety or any other obvious material planning consideration.”
3.6 Subsequent to this, a further application was submitted for the extension of the dwelling but this was withdrawn prior to a decision being taken.
3.7 The last application to have been submitted for this site was 25/90374/B. This proposed the replacement of the southernmost barn with a new garage building. By this time the western barn which was the subject of the 12 application for replacement, had been demolished but the approved replacement building had not been erected.
3.8 The existing outbuilding has a footprint of 5m by just over 13m and is 3.56m to the ridge and generally 2m to the eaves. The 2025 application proposes a building which had a main core with a footprint of 6.6m and a length of 17.2m with a lean-to section at the rear which added a further 3.5m to the depth of the building, to be used for a home office and sunroom. A small toilet was also accommodated on the ground floor and a store alongside the garage accommodation, within the building.
3.9 Like the previously approved outbuilding, the roofspace was being used, this time with an external staircase and the space shown as a bathroom and games room or bedroom.
3.10 The building was to be finished in stone and timber boarding with a slated roof.
3.11 This application was refused for the following reasons:
1. The principle of development for the proposal is unacceptable because itwould result in the erection of a new 2-storey, structure, which would be out ofscale, character and keeping with the countryside location of the site and itssurroundings. In this case, the outbuilding is read as an extension to thedwelling given the ancillary living accommodation it would provide. As a
general rule Policy H15 of the Isle of Man Strategic Plan 2016, permits up to 50% increase in floor space for rural extensions applies. The new 2-storey, structure would have an approximate footprint of 192.37m2 and a combined floor-space area of 245.38m2, when compared to the 66.66m2 of the existing single storey barn. This would amount to 288.5% as a percentage of the footprint of the outbuilding to be demolished and, 368.1% as a percentage of that buildings floor-space. Therefore, the proposal would result in an excessive form of development would out of scale for the site and its rural surroundings, which would be contrary to the provisions of Strategic Policy ST2; Spatial Policy SP5; General Policy GP2 b) and c); General Policy GP3 a),
b) and c); and Housing Policies H15 and H16 in the Isle of Man Strategic Plan 2016.
2. The site is located in the open countryside and in an area of High Landscape Value and Scenic Significance and, is located in the "D1 Ballajora and Ballaglass" Landscape Character Area as outlined in the Isle of Man Landscape Character Assessment - January 2008. The proposed development is unacceptable because it would result in the erection of a new 2- storey, structure, which would be out of scale, character and keeping with this countryside location and its surroundings. This would be contrary to the provisions of Environment Policy ENV1 which seeks to protect the countryside for its own sake; and, Environment Policy ENV 2 which indicates that such development will not be permitted where: "(a) the development would not harm the character and quality of the landscape; or(b) the location for the development is essential."
3. The size, scale and level of accommodation of the proposed new structure, which is for a 4-car garage; a wood/general store; a separate Home Office and Sun Room to the rear with shared access to a WC; and first floor games room/ bedroom and en-suite bathroom is excessive for an ancillary outbuilding serving a recently erected dwelling in the countryside. A kitchen and other facilities could easily be introduced post development. DEFA Planning would have no control over the introduction of any internal additions or alterations.
The proposal is, therefore, tantamount to the creation of a separate dwelling in the open countryside where planning policies advise that such a development would be unacceptable. This would be contrary to the provisions of Strategic
Policy 2; Spatial Policy 5; General Policy 2 b) and c); General Policy 3 a), b) and c); and Housing Policy 11 in the Isle of Man Strategic Plan 2016.
3.12 The Planning Officer makes a number of comments in his report for this application as follows:
1.2 The site is visible from the A2 where the fields slope downwards and overlook the small raised area of land on which the site sits. The current site dwelling is surrounded by 4 outbuildings to the south and west.
2.1 Proposed is the replacement of existing barn with two-storey garage with ancillary living space and storage. This involves the demolition and removal of the existing extension and alterations to the existing dwelling to provide additional living space and garages.
2.5 The new two-storey garage with ancillary living space and storage would be constructed from Manx stone for the gable end walls with vertical timber dressed/planed natural untreated cedar or larch timber cladding for the rear (south) elevation wall and north elevation wall.
4.7 Housing Policies 15 and 16 are both taken into consideration for this proposal, due to its semi-traditional styling with non-traditional elements and the nature of the proposals.
6.2.2 The proposed structure would fall outside the limitations of Class 17 of the Town and Country Planning (Permitted Development) Order 2019, and requires planning approval. The existing outbuilding is reflective of the previous agricultural use of the site. It is not a Registered Building, and the site does not lie within any Conservation Area. Whilst it has merit in that it is an historic structure in terms of its past connection to agriculture; and, the
whitewashed, stone walls are substantial, its roof structure, including the roof timbers and roof covering are relatively modern and it is considered that it would not meet the criteria for the existing structure to become a Registered Building. It could be demolished without recourse to DEFA Planning because demolition is not classed as operational development.
6.2.5 The previously approved (unimplemented) approval (PA12/01259/B) for "the erection of a replacement outbuilding to provide garaging and additional ancillary accommodation”.....This proposal did not involve the demolition of the existing barn or any other structure on the site.
6.2.6 The existing dwelling was accepted as a replacement for the original farmhouse on the site (See PA11/01007/B), and was regarded as a sympathetic replacement with traditional features, which was not excessively larger than the previous dwelling. Furthermore, the (unimplemented) approval (PA12/01259/B) for "the erection of a replacement outbuilding to provide garaging and additional ancillary accommodation", with a gross external floor area/footprint of approx. 93.27m2; and, total floor-space provision of 124.52m2 was accepted as an additional structure on the site in terms of siting, scale design, appearance and use as an ancillary structure serving the host (replacement) dwelling.
6.2.7 There is no particular Policy in the IoMSP 2016, relating to the provision of outbuildings and ancillary structures in the curtilage of dwellings in the countryside. With this in mind, it is considered that the provisions of Housing Policy 16 apply. This restricts the extension of nontraditional dwellings where this would increase the impact of the building as viewed by the public - the site is readily visible from the A2 to the west across the tram tracks, albeit this is a distant view. It is not visible from the Loop Road being screened by existing vegetation and topography.
6.2.8 It is considered that the provisions of Housing Policy 15 apply, regardless of the appearance of the outbuilding which here is being viewed as an extension to the dwelling because of the level of accommodation proposed.
6.2.10 With regard to the design of the proposed replacement two-storey structure, this would not reflect that of the current barn on the site, albeit in terms of its proposed siting, this would be on the footprint of the existing barn. However, the size, scale and bulk of the new structure compared with the traditional barn which it is proposed to replace; and, when compared with the previously approved PA12/01259/B proposal, is considered to be excessive in this rural location. Whilst views of the site and surroundings are limited it would represent a large oversized structure which would be poorly related to its surroundings and as such it would be contrary to the provisions of Policies GEN2 b) and c); GEN3 c).
Ecological Impact 6.2.11 Given the consideration outlined in Paragraph 6.2.2 that the existing barn could be demolished without recourse to DEFA Planning because demolition is not classed as operational development; and, notwithstanding the comments received from the DEFA Ecosystems Policy Team, the submission of a Bat Survey of the structure prior to demolition to clarify the presence or not of Bats, cannot reasonably be sought as planning approval to demolish the building is not required. In the event of any approval being granted, an informative outlining the applicants obligations in respect of the provisions of the Wildlife Act 1990 would be added as this is the relevant legislation in respect of the protection of Bats, and their known roosts and habitats, and whether they may be present within the building.
Other Matters 6.2.12 The size and scale of the proposed new 2-storey, structure is considered to be excessive. It is proposed as an ancillary building and would have an approximate footprint of 192.37m2; and, a combined floorspace area of 245.38m2, when compared to the 66.66m2 of the existing barn. In terms of the level of accommodation it would offer, this would comprise a 4car garage; a wood/general store; a separate Home Office and Sun Room to
the rear with shared access to a WC; and first floor games room/bedroom and en-suite bathroom. Should the building be constructed, post development a kitchen could be added without recourse to DEFA Planning. It is considered that the proposal would be tantamount to the creation of a separate dwelling in the open countryside where planning policies advise that such a development would be unacceptable.
3.13 It was also noted by a third party objector that whilst the approved replacement garage building had not been constructed, the original building had been demolished so it was debatable whether that permission was still capable of being implemented. The Planning Officer states that this permission has lapsed.
Other sites
3.14 There are numerous examples of applications where the reporting officer makes it clear that domestic structures are considered an acceptable form of development in the countryside. Furthermore, each planning officer in all of the cases makes no reference to Housing Policies 15 or 16 and instead, accepts that the development is contrary to General Policy 3 but accepts that the principle is acceptable and goes on to consider the proposals against Environment Policy 1 and where relevant, Environment Policy 2:
11/00325/B - erection of a store, Ballacrebbin Cottage, Jurby Road, Andreas where the officer states: “The starting point is the principle of the development; General Policy 3 indicates exceptions when development would be acceptable within the countryside. The proposal would not fall within the criteria of these exceptions, which was a concern of the previous application. This is not to say permission should be refused automatically; there are certain types of development which take place in the countryside which are not indicated within General Policy 3. This policy indicates the most common form of developments which take place within the countryside, but there are other forms (kennels, catteries etc) of development which are accepted to be ideally positioned within the countryside but not indicated as an exception. Garages,
in residential curtilages are generally accepted as a form of ancillary development.”
A detached garage had been permitted here previously (97/01131/B and 99/00384/ B).
3.15 20/00764/B - erection of a replacement dwelling and garage, Ballachrink Croft, Ballacorey Road, Bride - this was a triple car garage in the countryside.
3.16 23/00383/B - erection of garage in place of existing garage with store and home office above, Phoenix Cottage, Ballacorey Road, Bride. Here the officer states: “7.3.1 In assessing the principle of the proposed development, it is considered that the site lies outside of a defined settlement boundary and within a part of the countryside that is not zoned for development, and the proposed development does not pass for the exemption provided under General Policy 3. However, it is important to note that the site has an established residential use in the countryside where it is not uncommon to require the erection of outbuildings where they support the existing residential use on site, without compromising the environmental objectives of Environment Policies 1 and 2. Additionally, whist there is no specific provision within the Strategic Plan for garages, there is an acceptance in the permitted Development Order that such structures can be acceptable.”
3.17 22/00072/B - erection of detached triple garage, Ballaveare, Braddan.
3.18 Erection of double and triple garages, The Carrick, Sulby Glen. This proposed the following development:
3.19 The planning officer states the following: “6.2.2 Whilst there is nothing within the strategic plan on new development in the form of detached garages, there have been detached garages approved, in some instances, where the garage would not have an undue impact on the countryside or undermine the rural character of an area. Furthermore the Permitted Development Order allows (subject to conditions) the erection of a double garage (6mx 6m); therefore there is a general acceptance to the principle of a garage to properties within the countryside (i.e. land not designated).”
A technical floor plan showing the layout of a proposed double garage and workshop, including parking bays and storage areas, overlaid on site context.
4.0 The Proposal
4.1 The applicant has some concerns about a number of the planning officer’s comments and conclusions and does not entirely agree with the reasons for refusal. However, he has chosen not to pursue the previous application to appeal and instead wishes to amend the scheme to try to address the concerns previously raised.
4.2 This current application proposes the erection of a new, detached garage largely on the footprint of an existing building which is to be demolished (and which could be removed without permission as noted by the Planning Officer in the previous application).
4.3 The scheme differs from that proposed previously insofar as:
• The building has no rear lean to extension
• There is no ground floor toilet
• There is no bathroom facilities on the upper floor and
• The upper floor is to be used for storage in association with the dwelling.
4.4 The building will be 17.2m long (compared with 14.35m previously approved), 6.6m deep (compared with 6.5m as previously approved), 2.4m to eaves (compared with 3.1m previously approved) and 5.1m to the ridge (compared with 5.7m previously approved).
4.5 The building is to be used for the accommodation of four domestic cars and there is a wood/general store also within the building. The building is proposed to be used in association with the dwelling.
5.0 Assessment
5.1 As is noted in the numerous examples cited above, whilst the site is not designated for development and located in the countryside, and whilst General
Policy 3 of the Strategic Plan does not make an exception for additional detached domestic structures, the general principle of a garage is generally considered acceptable.
5.2 Indeed, there is provision for the erection of a garage up to 6.8m by 6.8m and 2.9m to the eaves with a roof pitched to match the existing dwelling and no higher than 4m. There is also provision for the erection of a greenhouse up to 15 sq m and no closer to another building or the boundary than 1m.
5.3 The principle of erecting a detached garage within this residential curtilage, has already been considered acceptable with the 2012 application.
5.4 We would submit that Ballig is no different from the examples given above, and is much less less visible than many of these. Indeed it was considered acceptable in 2012 on this very site. There has been no change in circumstance since then and as such, the principle should remain acceptable.
5.5 We would agree with the planning officer’s previous statement that as the demolition of a free standing structure does not constitute development for which planning approval is required, the demolition of the other outbuilding does not constitute commencement of 12/01259/B. The applicant would be happy to accept a condition if this current application were permitted, to require that on completion, this garage remains the only garage within the site.
5.6 We would also agree with the planning officer that the demolition of the existing outbuilding does not require planning approval so its loss cannot constitute a ground for refusing the application, as indeed it was not in the most recent application.
5.7 We fundamentally disagree with the officer’s assertion that the erection of a detached building is somehow an extension of the dwelling. It simply is not and
cannot be construed in any way to be so. As such, Housing Policy 15 (and 16) are completely irrelevant. None of the other applications for detached garages in the countryside have been assessed under this policy and we would recommend most strongly that no regard is had to this policy in the determination of this application, nor should it have in the previous application.
5.8 We would also disagree that the previously proposed building was two storey. That building and what is now proposed are single storey but utilise the available roof space to optimise the development.
5.9 The current scheme has been amended to remove the rear annex, toilet and bathroom and to create something which is broadly similar to what has already been permitted, but not implemented, within the site.
5.10 We would take issue with the planning officer’s assertion that the previously proposed development would be out of scale, character and keeping with the surrounding countryside. We would firstly disagree that the building is particularly visible, noting the previous officer’s comment in 2012 that “the site and buildings contained are quite well hidden in the landscape due to general topography and changes in levels between the Coast Road (A2) and the Glen Mona Loop Road. Whilst the increased width of the proposed building means that more roof may be visible it is considered that this increase and its impact on the landscape would be slight.”
5.11 We have tried to identify a location from where a clear view of the existing house and outbuilding is available and have struggled to find any place from where this is possible. Whilst the hedge alongside the A2 is visible from the garden and the noise from traffic travelling along this is audible therefrom, none of the vehicles could be seen from the site due to the height and nature of the roadside boundary. If the vehicles cannot be seen from the site then it follows that from a vehicle on the A2 it would not be possible to see the site.
5.12 Even if the building were more visible, we would submit that what is proposed is attractive, suitably proportioned and finished and if it were seen, would not appear out of keeping at all. The public view of the site is from a higher perspective and what would be seen, if anything, is the slated roof which is typical of many buildings seen in this landscape.
5.13 Again, we see little difference between this proposal and what was permitted on the same site previously, or between this proposal and the many examples of garages approved elsewhere in the countryside, most significantly more visible than what is proposed.
5.14 In recognition of the officer’s concerns about the size of the building, the rear section has been removed. What is proposed now is simply a four vehicle garage and log/general store to serve the existing dwelling. We do not consider this unreasonable and will allow the secure undercover storage of the applicant’s cars, bicycles and facilitate ev charging should the need arise.
5.15 The upper floor is simply a utilisation of the space which results from the traditional slated roof which is proposed. There is no intention to create another residential unit from this building and we believe the planning officer was wrong to refuse the previous application for a reason that this could have become a separate residential unit. Whilst we accept that the planning process has no control over the internal layout of the building, it can control its primary purpose and it is clear to us that planning approval would be required for the material change from a garage to a residential or indeed tourist unit in this case. The applicant would be happy to accept a condition that the building may only be used for the parking of vehicles and storage of items associated with the occupation of Ballig - a condition which has also been used elsewhere where detached garages have been permitted.
5.16 There are other concerns regarding the officer’s report in the previously refused application which we feel undermine the basis on which the application was refused.
“1.2 The site is visible from the A2 where the fields slope downwards andoverlook the small raised area of land on which the site sits. The current sitedwelling is surrounded by 4 outbuildings to the south and west.”
5.17 We would disagree that the building is “surrounded” by four outbuildings. There is the outbuilding which is the subject of this current application which sits to the south but the two other structures on the site - a stone shed with a glazed frontage and small timber shed, both situated alongside the hedge boundary to the south west of the house are hardly “surrounding” the dwelling.
“2.1 Proposed is the replacement of existing barn with two-storey garage withancillary living space and storage. This involves the demolition and removal ofthe existing extension and alterations to the existing dwelling to provideadditional living space and garages.”
5.18 We are unclear why the officer refers to the demolition and removal or the existing “extension” and quite what is meant by “alterations to the existing dwelling to provide additional living space and garages”. The officer is clearly
referring to alterations to the dwelling whereas the proposal involves only the erection of a detached building. Perhaps this is why he then goes on, incorrectly, to consider Housing Policy 15 as being relevant to the proposed detached garage.
“4.7 Housing Policies 15 and 16 are both taken into consideration for this proposal, due to its semi-traditional styling with non-traditional elements and the nature of the proposals.”
5.19 We are at a loss to understand why Housing Policy 15 or 16 are relevant to an application for a detached garage and do not understand the suggestion that this is because of “the semi traditional styling with on-traditional elements and the nature of the proposals”. A detached building, regardless of the nature of its styling and elements is not a dwelling or an extension to a dwelling. If these descriptions relate to the dwelling, again, this is of no relevance to the proposed detached building.
“The existing outbuilding is reflective of the previous agricultural use of the site.”
5.20 We would not disagree with this statement but as the site is no longer an agricultural holding or used as such, the relevance of its continued existence is therefore questionable, we would submit.
“6.2.5 The previously approved (unimplemented) approval (PA12/01259/B) for "the erection of a replacement outbuilding to provide garaging and additional ancillary accommodation”.....This proposal did not involve the demolition of the existing barn or any other structure on the site.”
5.21 This is clearly incorrect as the proposal describes the erection of a replacement outbuilding to provide garaging and the drawings clearly show the proposed building on the footprint of an existing building. It is therefore a material misunderstanding of that application to say that the proposal did not involve the demolition of the existing barn or any other structure on the site.
6.2.7 There is no particular Policy in the IoMSP 2016, relating to the provision of outbuildings and ancillary structures in the curtilage of dwellings in the countryside. With this in mind, it is considered that the provisions of Housing Policy 16 apply.
5.22 We would fully accept that there are no Strategic Plan policies which support the erection of detached garages but this is agreed by all of the officers who dealt with the applications referred to in the Planning History section above, but who still concluded that the principle of a detached garage was acceptable. The fact that there are no policies which specifically support the erection of a detached garage do not justify selecting another irrelevant policy and trying to apply it to something to which it was not intended to apply.
“This restricts the extension of nontraditional dwellings where this would increase the impact of the building as viewed by the public - the site is readily visible from the A2 to the west across the tram tracks, albeit this is a distant view….(then later in the same section of the report”…” Whilst views of the site and surroundings are limited…”
5.23 We would reiterate that we are struggling to identify any public place from where the existing or proposed outbuilding is or would be seen but the officer himself seems unsure whether it is “readily visible” or whether “views of the site and surroundings are limited”.
6.2.8 It is considered that the provisions of Housing Policy 15 apply, regardless of the appearance of the outbuilding which here is being viewed as an extension to the dwelling because of the level of accommodation proposed.
5.24 Again, we would disagree that Housing Policy 15 in any respect relevant to this application, regardless of the level of accommodation proposed as it is not an extension of the existing dwelling.
Conclusion
5.25 We would submit that what is now proposed is an acceptable form of development in the countryside, not dissimilar to what previously had permission here and to numerous other detached garages which have been approved in the Island’s countryside.
5.26 We believe that the appropriate policies to be considered are Environment Policies 1 and 2 which protect the countryside from harmful development and whilst General Policy 3 is certainly relevant, it should not be taken to prevent the erection of detached domestic structures where all other impacts are considered to be acceptable as has been the position of numerous other officers when considering other proposals for detached garaging in the countryside.
5.27 We don't believe that there will be any adverse impact on the character of the countryside from the proposed development as the proposed building will not be publicly visible and even if it were, it is only marginally larger than what exists and is not unattractive and finished in traditional and dark coloured materials.
5.28 The existing building has an internal depth of less than 4m which would not enable a motor car to be accommodated within it. It would be possible to erect a
6.8m by 6.8m detached garage without planning approval, in addition to the retention of this outbuilding but the location of the outbuilding is highly suited to the parking of vehicles. Replacing the existing building with the new garage will reduce the amount other garden which would be lost if a garage were erected in additional to the outbuilding, and rebuilding the outbuilding in a similar elongated form will replicate the existing building more closely than would a garage built under the Town and Country Planning (Permitted Development) Order 2025, and would also enable all of the applicant’s vehicles to be accommodated securely and under cover in addition to providing a wood/general store.
5.29 The proposal will not alter the distinct and recognisable, relatively small-scale, irregular field pattern of predominantly arable fields which is referred to in the Landscape Character Assessment and would conserve the character, quality and
distinctiveness of this area with its tranquil, relatively sparsely settled nature, its distinctive field patterns, its rural road network, its numerous areas of fragmented woodland and the setting of the various archaeological and historic features within the area as is the overall landscape strategy for this part of the Island.
5.30 The proposal would enhance the facilities available within the site by providing secure undercover storage space for the vehicles associated with the existing dwelling in a manner proportionate both to the building to be replaced and the existing dwelling.
5.31 The development will have no adverse impact on the countryside and is therefore in accordance with Environment Policies 1 and 2. There are no impacts on any neighbouring property or highway safety.
Sarah Corlett 23.06.25
APPENDIX ONE
Excerpt from the Landscape Character Assessment 2008 D1 BALLAJORA AND BALLAGLASS Key Characteristics
• A tranquil, rural landscape of predominantly arable fields.
• Scattered settlement consisting of small, isolated farmsteads and hamlets, but also with several clusters of housing (e.g. at Port Lawaigue, Ballajora etc.)
• Topography slopes upwards to the west, to meet the base of the Uplands and falls (quite steeply in places) towards the sea to the east.
• Relatively steep and incised paths of Ballaglass Glen and the southern section of Glen Mona dissect the area.
• Distinct, relatively small-scale, irregular field pattern but with medium-scale, more regular fields in northern part of area. • Field boundaries generally delineated by low, mature Manx hedgerows, with occasional single mature trees visible.
• Several large patches of mixed semi-natural woodland (containing many mature oak, beech, larch and pine trees) provide a strong sense of enclosure within Ballaglass Glen.
• Network of minor rural roads, which are characteristically single track, sometimes sunken and crossed by fords.
• Dramatic, dominant rising uplands to the west, provide a strong sense of enclosure in parts.
• Generally strong sense of tranquillity, but much diminished in vicinity of Dreemskerry Quarry and Dhoon Quarry.
• B19 and A15 Roads.
• Manx Electric Railway.
Overall Character Description Situated to the south of Ramsey and east of the Northern Uplands, the topography of this character area varies greatly. To the west, the landscape slopes gradually upward to meet the base of the Uplands, whilst further to the east, topography falls
(quite steeply in places) towards the sea. The relatively steep and incised paths of Ballaglass Glen and the southern section of Glen Mona (which converge within the area and flow eastwards to join the sea at Port Cornaa) dissect the area. A distinct and recognisable, relatively small-scale, irregular field pattern of predominantly arable fields covers the area. Field boundaries are generally delineated by low, mature Manx hedgerows, which are predominantly intact, with occasional single mature trees visible. In places, visually intrusive silver corrugated roofs of agricultural buildings associated with small farmsteads contrast with the surrounding generally muted landscape.
The corridor of Ballaglass Glen (a Manx National Glen) is lined along most of its length by mature vegetation. Within the lower part of the glen, several large patches of semi-natural woodland (containing many mature oak, beech, larch and pine trees) provide a strong sense of enclosure and delineate the path of the glen as a distinctive landscape feature within views from adjacent character areas. This relatively short coastal glen was once the centre of an important corn mill and contains several traditional stone buildings, which were erected by the Great Mona Mining Company, which operated (from 1854).
The area is accessed via the A15 main road corridor, which leads westwards to the Uplands, and eastwards towards Maughold Head. A network of minor rural roads, which are characteristically single track, sometimes sunken and crossed by fords) provide further access to landscape within the area. These road corridors are often lined with mature deciduous vegetation. The Manx Electric Railway, with its distinctive overhead electric lines crosses the area and contributes to a strongly recognisable sense of place and in places, draws the eye towards the dramatic coastline to the east. Settlement pattern is generally scattered, predominantly consisting of small, isolated farmsteads and hamlets. The dramatic, dominant rising uplands to the west, provide a strong sense of enclosure in parts, whilst open views of the open sea and wide skyline can be gained to the east. There is generally a strong sense of tranquillity throughout the character area, particularly within Ballaglass Glen, where the sound of water cascading, trickling and rushing down the River Cornaa, evokes a strong recognisable sense of place.
Key Views
• Panoramic views to dramatic backdrop of rising uplands to the west;
• Panoramic, open views towards the sea, which is visible as a skyline feature to the east;
• Enclosed and channelled views along the corridors of Ballaglass Glen and Glen Mona.
Historic Features
• Long Cairn – Cashtal yn Ard.
• Burial Ground – Ruillick ny Quakeryn.
• Stone buildings and other ruins associated with the Great Mona Mining Company.
Ecological Features
• Mature semi-natural woodland within Ballaglass Glen.
• Minor single track sunken rural roads, with fords.
• Scattered settlement pattern of isolated farms and hamlets.
• Sites of archaeological importance.
• Strong sense of tranquillity.
• Ecological value of the aquatic ecosystem with riparian habitats.
• Manx Electric Railway and its halts.
Landscape Strategy
The overall strategy is to conserve and enhance the character, quality and distinctiveness of this area with its tranquil, relatively sparsely settled nature, its distinctive field patterns, its rural road network, its numerous areas of fragmented
woodland and the setting of the various archaeological and historic features within the area.
Copyright in submitted documents remains with their authors. Request removal
Source & Provenance
Official reference
25/90628/B
Source authority
Isle of Man Government Planning & Building Control