Loading document...
The site forming the subject of this planning application is part of a much wider area in the family ownership known as Ballagarraghyn Farm. The farmhouse and outbuildings are set on the south east side of the Coast Road at Jurby with the majority of the farm holding, including the lookout post at Cronk y Cliwe, set on the north west side of the Coast Road. The farm holding extends to slightly more than 81 hectares. The existing building, subject of this planning application, take the form of a two storey, solid brick built structure with an external staircase leading up to the first floor room and this building formed a lookout post on the sea based bombing range at Jurby. Alongside the lookout post there are solid brick walls forming an open structure for a former generator house for which planning permission had been granted. The building, although structurally sound, has no windows or doors and is basically a shell, although the lookout seating arrangement on the roof of the building remains in situ. The building was part of a number of properties constructed by the Ministry of Defence for use in connection with the sea bombing range off Jurby Head with the main base and buildings being set at Nappin on Jurby Head with a further, similar, lookout post being situated at Orrisdale. The lookout post at Orrisdale has been demolished and removed but the main base at Nappin was granted planning permission for residential use and converted into living accommodation, the dwelling is occupied and now known as "Cliffhanger". The range was used by British, as well as foreign, bombers during its' lifetime and was in use up until the 1990's. When the Ministry of Defence decided that the bombing was to be discontinued on this range, they offered to either demolish the buildings at Cronk y Cliwe or hand them over to the family at Ballagarraghyn Farm upon whose land the building stood. The family took over the building but it has not been used for any purpose since its' acquisition. The lookout post has a solid surfaced Lane leading from the Coast Road and this provides easy vehicular access to the site. There are also various off-road and scrambles tracks in the vicinity which also share the same road belonging to Ballagarraghyn Farm. The scrambles tracks have planning approval for a limited number of events during the course of a year.
The lookout post is situated some 500 metres from the Coast Road and the upper floor of the building is just visible from some public viewpoints.
Colour photographs indicating the existing buildings standing on site are attached at APPENDIX 1.
Colour Google images indicating the relationship of the site with the Coast Road and showing the access lane to the site are attached at APPENDIX 2.
|  |  |  |
|  |  |  |
|  |  |  |










EXISTING LOOKOUT POST & GENERATOR HOUSE.
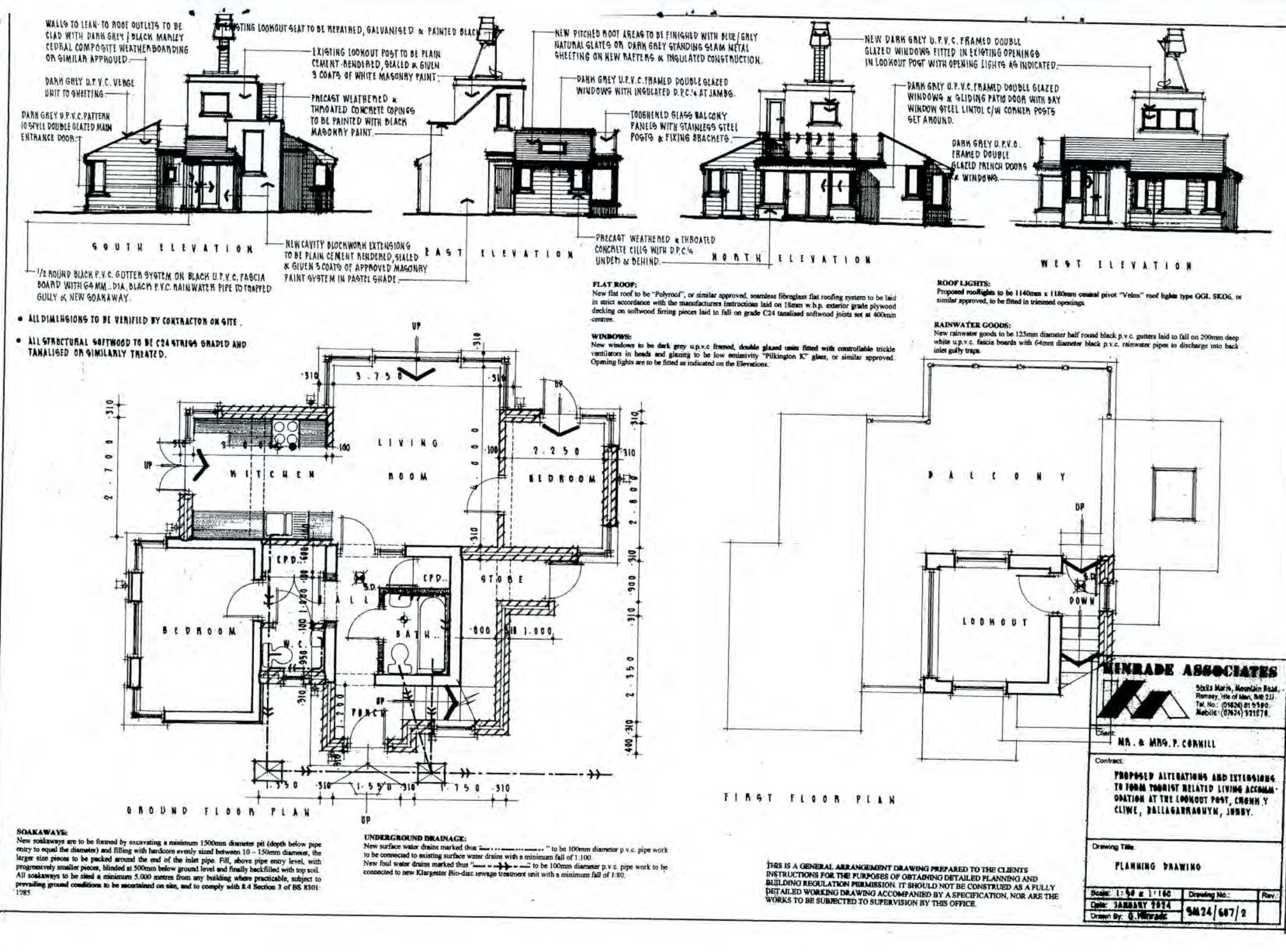
The proposal seeks to gain planning approval for the renovation of the existing lookout post together with modest extensions to create tourist related living accommodation. Lengthy discussions have taken place with the Planning Department regarding the proposed works and a number of sketches indicating the suggested layouts, together with colour 3D images, were forwarded to the Department for discussion. It was suggested that, as the building definitely has some historic significance within its' setting, efforts should be made within the design process to emphasise the existing structure to try and ensure that any proposed extensions would be subordinate to the original structure and features. Within the design process, we have kept all extensions to a single storey level set around the existing lookout post and covered-in the external staircase to provide access to the first floor lookout area. The proposal would seek to utilise the main two storey section of the lookout post as an entrance feature with internal Bathroom and the generator house would be upgraded to form one of the two Bedrooms. The main part of the extension would be on the north side of the existing building to form a Living Room with open plan Kitchen and a small second Bedroom. The central section of the extension directly behind the lookout post (on the sea side) would have a flat roof which would be utilised as an external balcony and the two small extensions to the east and west elevations would be covered with mono-pitch roof areas covered in natural slate. The single storey elements will ensure that the dominant feature of the proposal will remain the central tower rising up through the surrounding living accommodation and this will remain as the original, dominant feature. At the entrance leading in to the building, a small Porch has been set adjacent to the entrance Hall and staircase and this too has a lean-to slated roof finish to provide a quirky and unusual appearance to each part of the extended building around the main tower.
As part of the scheme, the material finishes would be natural slate to pitched roof areas, a dark grey/black Marley Cedral weatherboarding finish to the north, south and east faces of each of the Bedroom outlets set beneath their mono-pitch slate roof areas. Plain cement rendered wall surfaces would be placed on the entrance Porch, stair well, part of the Kitchen and Lounge on the seaward side and the main two storey original building. It has been suggested by the Department that the main two storey lookout post be painted white to highlight the original building with all other surrounding plain rendered wall surfaces painted in a pastel shade to complement the wall cladding and roof coverings but to play a "minor part" when set against the bold white finish of the original building. Windows would be dark grey u.p.v.c framed double glazed units.
The original lookout post chair and observation point set on top of the flat roof would be refurbished and re-fixed in position on the flat roof as part of the proposed works to help retain the identity of the original building.
As part of the proposal, colour 3D images of how the building would look once completed have been attached as part of the planning application along with a Survey Drawing showing existing Floor Plans and Elevations of the lookout post and a planning drawing indicating the Ground Floor Plan, First Floor Plan and Elevations of how the scheme has been perceived and developed.
Prior to approaching the design for the scheme, discussions took place with the Planning Department and it was recommended that the scheme proposed would have to be shown to be appropriate for its setting and take cognisance of relevant policies within the Strategic Plan such as General Policy 3, Environment Policy 16 and Business Policies 12 and 14.
General Policy 3 relates to development outside of areas zoned for development and it notes that development will not be permitted outside of those areas which are zoned for development on the appropriate Area Plan with the exception of :-
Here I would refer to paragraph (b) as this is the section applicable to our proposal and this states:- "conversion of redundant rural buildings which are of architectural, historic or social value and interest; (Housing Policy 11).
Housing Policy 11 notes that:- conversion of existing rural buildings into dwellings may be permitted, but only where: (a) Redundancy for the original use can be established; (b) The building is substantially intact and structurally capable of renovation; (c) The building is of architectural, historic or social interest; (d) The building is large enough to form a satisfactory dwelling, either as it stands, or with modest, subordinate extension which does not affect adversely the character or interest of the building; (e) Residential use would not be incompatible with adjoining established uses or, where appropriate, land-use zonings on the area plan; and (f) The building is or can be provided with satisfactory services without unreasonable public expenditure.
Such conversion must:- (a) Where practicable and desirable, re-establish the original appearance of the building; and (b) Use the same materials as those in the existing building.
The building is unusual and "of its' time", the use was as a lookout post for the bombing range and all neighbours within the Jurby area will remember when fighter planes would use the targets at sea for practice prior to being deployed, perhaps to war zones, to utilise their bombing skills. The lookout posts along the coast would have been well-known features and eve in the Ramsey area, it was possible to see, and certainly hear, the bombers peeling off above the coastline after their bombing run and heading back out to sea in readiness for another pass along the coast. These were frequent images of the time and whilst the lookout post may not have any specific architectural merit being exactly what it says it is, there is
certainly an historic element and interest to this structure in much the same way that the Department have registered the war time "pill boxes" as low level lookout posts from the war years. This is one of the remaining structures from that post-war period and the proposal is seeking to retain and highlight the structure as well as breathing new life and a new use into the building by addition of limited extensions.
The building would generally comply with parts (a), (b), (c), (e) and (f) of Housing Policy 11 but would require modest subordinate extension as noted within paragraph (d) of Housing Policy 11 to ensure that adequate living accommodation is provided for residential use. During discussions it has been stressed by the Department that any extension must be subordinate and must also try to ensure that it does not affect adversely the character or interest of the building and we think that after having incorporated minor modifications as requested by the Department to ensure that all proposed extensions are both limited in size, shape and height, that the original building will remain the dominant feature.
We would like to think that the colour 3D images have taken close note of the wording of Housing Policy 11 and translated the requirements of the Policy into a practical demonstration of how our proposal would comply with each of the specific requirements of the Policy to ensure that the end product would retain the character and interest of the original building as required.
Environment Policy 16 almost reflects the wording of Housing Policy 11 with the following references :-
industrial/commercial use may be permitted where : a) It is demonstrated that the building is no longer required for its original purpose and where the building is substantially intact and structurally capable of renovation; b) The reuse of the building will result in the preservation of fabric which is of historic, architectural, or social interest or is otherwise of visual attraction; c) It is demonstrated that the building could accommodate the new use without requiring extension or adverse change to appearance or character; d) There would not be unacceptable implications in terms of traffic generation; e) Conversion does not lead to dispersal of activity on such a scale as to prejudice the vitality and viability of existing town and village services; and f) The use of existing buildings involves significant levels of redevelopment to accommodate the new use, the benefits secured by the proposals in terms of impact on the environment and the rural economy shall outweigh the continued impact of retaining the existing buildings on site.
As previously noted, we feel that the retention and upgrade of the existing building will provide a tourist related development of note in the neighbourhood. We also think that by investing in the redevelopment of the existing building to accommodate the proposed new use, financial benefits to the owners will assist in the running of Ballagarragyhyn Farm and help diversify the farm operations by having a steady income stream from the property rather than having an under-utilised and unusual building sitting on the site. We are aware that the location does not interfere with the arable nature and running of the remaining farmlands and development of the lookout post would not detract from other income raised from the farm but would actually assist the longer term viability of the facility.
Reference has also been made by the Department relating to Business Policies 12 and 14 and these state :- "permission will generally be given for the conversion of redundant buildings in the countryside to tourist use providing that the development complies with the policies set out in paragraph 8.10- Housing Policy 11." and "Tourism development may be permitted in rural areas provided that it complies with the policies in the Plan. Farmhouse accommodation or quality self-catering units in barn conversions and making use of rural activities will be encouraged but must comply with General Policy 3 and Business Policies 11 and 12. Other forms of quality accommodation in rural areas will be considered, including the provision of hostels and similar accommodation suitable for walkers but must comply with General Policy 3 and Business Policies 11 and 12."
Within the relatively immediate neighbourhood of the lookout post, a number of planning applications have been approved for the conversion of existing buildings into either permanent residential accommodation or tourist related accommodation. When their original uses have had no residential connection.
Reference has been made to the conversion of the main R.A.F. base at Nappin, Jurby Head which formed the headquarters of the bombing range. When operations ceased, planning permission was sought and granted to convert the buildings into permanent living accommodation and the property is now occupied. Colour photographs are included at APPENDIX 3 showing the existing buildings at "Cliffhanger" and these show a building of similar, but much larger, form to the scheme we wish to undertake at the lookout post.
At APPENDIX 4, drawings have been included showing the proposed conversion and upgrading, together with substantial extensions, to the Water Tower on the edge of Jurby Airfield forming part of the Ballamoar Castle Estate. This application was approved but works were not undertaken.
At APPENDIX 5, colour photographs and drawings indicating Floor Plans and Sections have been included and these show an existing semi-derelict outbuilding set immediately adjacent to the Polly Road at East Bretney Farm, Jurby. This was the subject of a recent planning application (23/00679/B) and was granted detailed planning approval by the Planning Committee to put a whole new floor in at First Floor level together with a Ground Floor extension and First Floor covered balcony above adding well over to the existing floor area of the building. The application was styled as conversion of existing outbuilding into living/tourist accommodation and was approved.




{{image:7221095}} {{image:7221100}} This is the by 50 for all entrants and carers
Design, Planning & Drawing Services
916 Victoria Street
Douglas
Isle of Bisc 001 SUI The Water Tower Ballamcar Castle
Jurby
Proposed Plans
{{image:7221105}} {{image:7221106}} {{image:7221107}} {{image:7221108}} {{image:7221109}} {{image:7221110}} {{image:7221111}} {{image:7221112}}
Within dimensions to take precedence over scaled dimensions at all times. Contractors to verify dimensions on site before commencing any work and report any discrepancies to the owner. © Progeny Ltd, no unauthorised copying or use.
Design, Piercing & Drawing Services
416 Victoria Street Douglas Isle of Man 081 3LN Tel: 0142 219901 www.progeny.com
Mr & Mrs E Rothwell The Old Plough Rodbourn Road Corston Malmsbry SN16 0HA
The Water Tower Baltimore Castle Jurby
Proposed Elevations and Sections

East Devotion

South Elevation

Section

Site Plan

North Elevation
West Elevation
Written dimensions to take precedence over scaled dimensions at all times. Contractors to verify dimensions on site before commencing any work and report any discrepancies to the owner © Progeny Ltd. no unauthorized copying or use.
Progeny Limited Design, Planning & Drawing Services 914 Waleria Street Douglas Isle of Man, NH 010 Tel: (603) 574-6000 Fax: (603) 574-6002 E-mail: [email protected]
SOLD TO: Existing Plans & Elevations
1:1000
| Comments | 08/01957/B Jurby |
|---|---|
| Date | 26 November 2008 |


Digitized by GOOgle

South-East Elevation
North-East Elevation


North-West Elevation South-West Elevation


A-A Section 1.50

B-B Section 1.50

BELLOWS: Step 1: Inability to be filled in the "Kitching" or similar approved glass panel before taking it off the edge with the other glass. If left, the bar is open and in effect temperature of 100°C. The bar is open and good quality light grey measure, even to match the window wide.

PLANT LIGHTS: Proposed cart lights to be filled in the residence indicated on the dimensions and to be 1/40" x 1/40" in normal. 1/40" x 1/40" cart lights have 1/40" x 1/40" in normal. 1/40" x 1/40" in normal. 1/40" x 1/40" in normal. 1/40" x 1/40" in normal. 1/40" x 1/40" in normal.

C-C Section 1.50

GENERAL NOTES: FIRE REGULATIONS: The proposed fire requirements for this type of residential development are covered under Approved Document B of the Building Regulations, including expiration for the installation of operation systems and as such will be dealt with in the Building Regulation Submission Steps. NOTE: This proposed drawing has been prepared to obtain statutory Planning approval only and should not be read as a full waiting drawing. The copyright of this drawing is the property of Pembert Miller Ltd and may not be reproduced without their permission. Written dimensions to be used in preference to stated dimensions at all times.

Section 1.50
Section 1:50

Section 1:50

3D Visual No 1


First Floor Plan 1:50

Location Plan 1:2500

Site Plan 1:500
General notes
Contact
Proposed conversion of existing outbuilding into living/surplus accommodation at East Beltway Farm, Polly Road, Jurby East, INT 355
Whilst the Department have indicated which Policy documents our proposals must be deemed to comply with, development of this site to for a tourist related property would sit well with the Department of Leisure requirements as the end product would provide a short term holiday destination for occupants who could avail themselves of the facilities provided within a converted historic building of visual and historic interest, especially to persons who may have been involved in the aviation industry.
The converted property, by its' very name "the lookout post", would have unrivalled views along the coastline, out to sea and inland looking towards the northern hills, uninterrupted views all round. The property would be immediately adjacent to the coastal footpath and would have an added appeal to walkers.
The lookout post is a link to the past and, luckily, was not demolished and removed as so much of the Island's historical past has. It is still standing and forms part of the aeronautical history of this part of the Island with some of the original buildings still standing on Jurby Airport, the pill boxes dotted around the perimeter of the Airport, probably all of which have now been registered, and the bombing range headquarters at Nappin, Jurby Head has been retained, renovated and occupied as a residential property, although the appearance is definitely aeronautical in style with retention of the central control tower.
The development of this site would enable the owners of Ballagarraghyn Farm to diversify slightly and have an income stream from a residential property on their land formed within an existing building without having to create a new property from scratch.
The addition of this unusual tourist related property would add to the rural charm of converted outbuildings or barns forming holiday accommodation but would also create a unique property unlike any other on the Island.
We have tried to maintain the important central feature required by the Department to highlight the obvious nature of the original use of the building as a lookout post and have kept extensions to a minimum with low level additions in materials that would complement and not detract from the lookout post.
We would hope this proposal would, if approved, provide a welcome and unique addition to the wide range of unusual holiday destinations available to visitors to our Island.

STANDARD CITY
This station was the first to be opened by recording a minimum 1500mm diameter jet depth below gran- mery to equal the diameter and filling with hardware evenly sized between 10 - 150mm diameter, the large size pieces to be packed around the end of the train pipe. Fill, above pipe entry level, with programmity smaller pieces, situated at 500mm below ground level and finally backfilled with top and all equipment in the kind of minimum 3 feet radius from any building where practicable, subject to providing ground conditions in the assembled on-site, and to comply with 8.5 Section 2 of the 2003 CITY.
STANDARD ASSOCIATION
TAXE: 8000. BENZEN ROAD TAX NO: 00115000, 00015000 TOTAL: 15000.000 CENTRAL CITY
MIS. & MEN. P. CERNELL
CENTRAL
PROPOSED ALTERATIONS AND ESTIMATION TO FIRME THERISE RELATED 110MM DAMAGE NATURE AT THE LIBRARY PARK, CREEK Y CLINE, BELLASZBURSTA, 2000
Catering Title:
PLANNING TRANSFER PLANNING TRANSFER PLANNING TRANSFER PLANNING TRANSFER PLANNING TRANSFER PLANNING TRANSFER PLANNING TRANSFER PLANNING TRANSFER PLANNING TRANSFER PLANNING TRANSFER PLANNING TRANSFER PLANNING TRANSFER PLANNING TRANSFER PLANNING TRANSFER PLANNING TRANSFER PLANNING TRANSFER PLANNING TRANSFER PLANNING TRANSFER PLANNING TRANSFER PLANNING TRANSFER PLANNING TRANSFER PLANNING TRANSFER PLANNING TRANSFER PLANNING TRANSFER PLANNING TRANSFER PLANNING TRANSFER PLANNING TRANSFER PLANNING TRANSFER PLANNING TRANSFER PLANNING TRANSFER PLANNING TRANSFER
Copyright in submitted documents remains with their authors. Request removal