Loading document...
Building Design Consultants
4, Oakleigh Court, West Heath Congleton, Cheshire, CW12 4NP Tel: 01260 273331 Fax: 01260 273331 Mobile: 07774 783827
Proposal - Replacement Dwelling.
Site - Greenlands. Barnell Lane, Patrick, Isle Of Man IM5 3AN
Client - Mr D Brierley. Description - The proposal is to seek full planning consent for a replacement dwelling at the above site.
The site is located to the west side of Barnell Lane approximately 150 meters from its junction with Patrick Road to the north. Greenlands is a bungalow at the northwestern edge of a row of existing houses surrounded by open fields.
Previous Planning history to the site includes:
The proposal is to build a new dwelling that will replace an existing unattractive property. The proposal will provide the opportunity to construct a more traditional Manx style property that will be a more appropriate style within this countryside location.
Existing Site - The site is approximately 1300sqm (0.13 hectares) in area and is slightly irregular in shape.
The existing property is a bungalow style property with a combination of pitched and flat roof areas and is certainly not of traditional Manx vernacular.
4, Oakleigh Court, West Heath Congleton, Cheshire, CW12 4NP
Tel: 01260 273331 Fax: 01260 273331 Mobile: 07774 783827
Aerial Photograph of the site. {{image:220069}} Registered Office, 4, Oakleigh Court, Congleton, Cheshire, CW12 4NP. Company Registration No: 046888

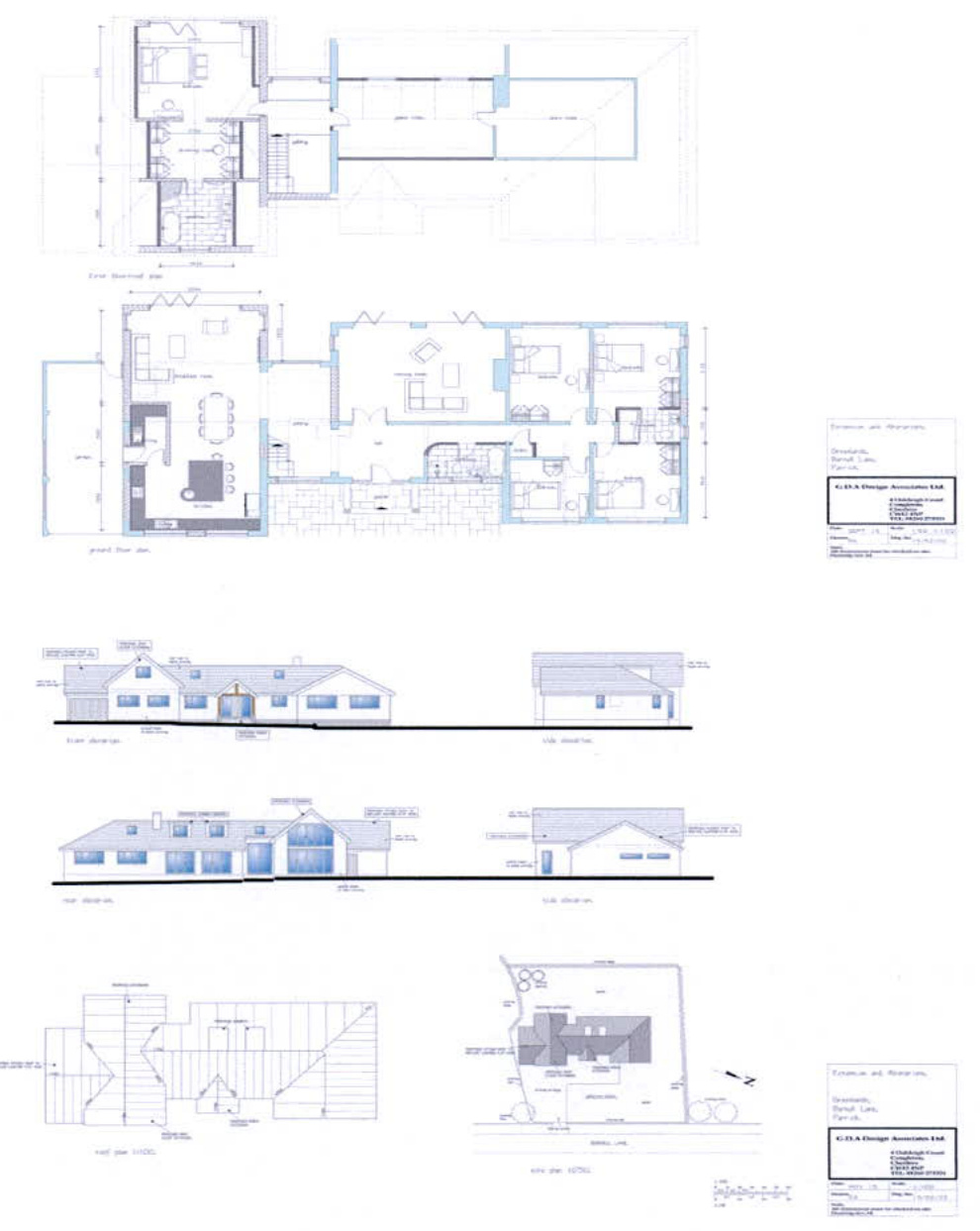
Planning Consent has been granted for the extension and alteration of the existing property and copies of the approved drawings are shown below.
The current established settlement located around the property is made up of a number of existing properties. All the properties are a mix of age, size and appearance and form a loose knit settlement pattern. These existing properties are set in extensive grounds and are contained by established trees and vegetation.
Proposal - The proposal is to build a tradition Manx style detached dwelling. Accommodation will be provided on two floors. The ground floor accommodation will provide a sitting room, kitchen with breakfast/dining area, boot room, central entrance hallway and a bedroom with shower room suitable for disabled access. The first floor area will have four bedrooms with three ensuite/bathroom facilities and a first floor snug seating area. A detached triple garage with storage loft over is also proposed to the south side of the new dwelling.
The total gross internal floor area provided by these two floors will be approximately $360 \mathrm{~m}^{2}$. Windows to both floors will generally face the front and rear of the property. The rear larger windows will take advantage of the extensive views over the surrounding countryside. The three submitted site plan drawings detail the position of the existing and proposed property and also that which was approved under application 16/00298/B.
It is proposed that the new dwelling will be constructed with high levels of insulation and air-tightness, which will result in low level heating demand. To further reduce the reliance on natural resources renewable energy heat sources such as heat pumps, solar panels and rainwater harvesting will be incorporated into the design.
Layout - The proposed replacement dwelling will be located in the same position as the existing property with the increased footprint area extending towards the northern site boundary.
The proposed detached garage will be located in the same area as the existing garaging on site. The front driveway and garden layout also remains as the original property.
Scale of Development - The proposed replacement property is shown on drawing numbers $18 / 28 / 01$ and $18 / 28 / 02$ and is approximately 21.5 m wide by 12.5 m deep at its maximum. The separate detached garage as shown on drawing 18/28/02 measures approximately 10 m wide by 7.5 m deep.
The eaves height of the dwelling is approximately 5.6 m and the ridge height will be approximately 9.5 m .
The total gross foot print area of the dwelling will be 222 sqm and the total net ground and first floor internal area created is 360 sqm .
Appearance - The proposed dwelling will have the appearance of a traditional two storey Manx style property with a detached garage structure that will follow a similar form to the house.
Materials proposed are listed on drawing 18/28/01. The roof will be finished with natural slate and walls will be finished with white render and Manx stone fenestration detailing.
The front elevation fenestration will contain narrow rectangular window openings around a central entrance doorway giving the appearance of a larger Manx style property. The rear elevation will contain more modern sized glazed openings to take advantage of the views over the surrounding country side.
The proposed roof form is a simple dual pitch roof with parapet gable verges and it is proposed to have gable chimneys that sit flush with the external gable wall face.
Design guidance has been taken from The Isle Of Man Planning Circular 3/91

4, Oakleigh Court, West Heath Congleton, Cheshire, CW12 4NP Tel : 01260273331 Fax : 01260273331 Mobile : 07774783827
Extracts from Isle Of Man Government Planning Circular 3/91, Guide To The Design Of Residential Development In The Countryside.
Building Design Consultants
4, Oakleigh Court, West Heath Congleton, Cheshire, CW12 4NP
Tel: 01260 273331 Fax: 01260 273331 Mobile: 07774 783827
Landscaping – The existing site retains the existing properties hard and soft landscaping and it is proposed that further soft landscaping can be introduced around the site to help integrate the new property with the surrounding countryside.
Access – The site will retain the existing pedestrian and vehicular access from Barnell Lane and there is adequate parking and turning areas at the front of the property.
The new dwelling will be subject to Building Regulation control and the application of part M facilities for disabled use. It is proposed that the ground floor bedroom will be suitable for wheelchair disabled access.
Conclusion – The proposal as a replacement dwelling will provide the opportunity to remove an existing unattractive property and replace it with a traditional Manx style residence.
The current property has an extant Planning consent for a large extension and alterations to the existing property and this proposal will result in a similar sized development.
The proposed development would appear as an integral part of the existing group of properties and would not have an adverse effect on the character and appearance of the open countryside.
David Allen ABEng 20 November 2018 G.D.A. Design Associates Ltd
Copyright in submitted documents remains with their authors. Request removal