REAR ELEVATION (west) 1:100 SIDE ELEVATION (north) 1:100
Architectural elevation drawing showing a proposed detached dwelling alongside St Stephens Church Hall with detailed material annotations.
SIDE ELEVATION (south) 1:100
Architectural elevations showing the front and side views of a proposed detached dwelling with stone cladding and annotations on window and roof details.
SITE PLAN 1:200
A technical site plan illustrating the layout for a proposed detached dwelling, including vehicular access, parking areas, and drainage infrastructure like a soakaway and septic tank.
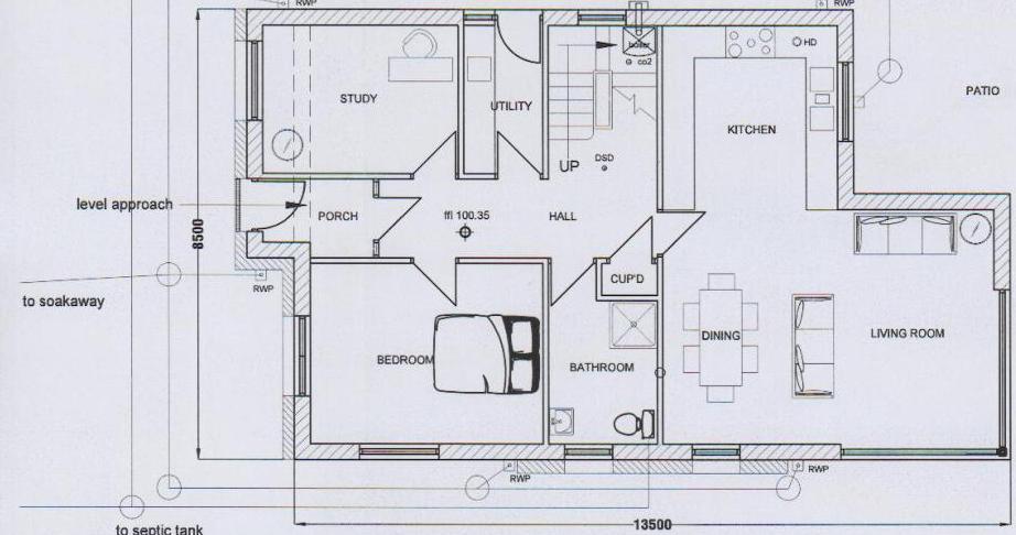
Architectural floor plan showing the layout of a new detached dwelling including rooms like a kitchen, living room, and study. The drawing details room dimensions, furniture placement, and drainage connections to a soakaway and septic tank.
GROUND FLOOR PLAN 1:100
18f:0532
This image displays a detailed ground floor architectural plan for a proposed detached dwelling, showing room layouts and drainage connections.
AREA 1:100
Copyright in submitted documents remains with their authors. Request removal
Source & Provenance
Official reference
18/00532/REM
Source authority
Isle of Man Government Planning & Building Control