Loading document...
Secretary to the Planning Committee Department of Planning Murray House Mount Havelock Douglas Isle of Man. IM1 2SF. 8th March 2016
Dear Sir / Madam,
Please find enclosed four copies of an application seeking approval for the above.
RL 360 has recently completed the purchase of another business and is intending to incorporate the new staff within their existing premises at the Isle of Man Business Park and as part of this relocation needs to provide additional permanent car parking.
The current car parking provision for RL360 House is 103 spaces on site plus 43 on the adjacent piece of land, giving a total of 146 spaces. The owner of the adjacent land has given notice that they would like put their land to another use and therefore would like the temporary car parking the land to be removed.
The increase in staff numbers on site and the loss of car parking on the adjacent land has therefore necessitated this planning application to provide more car parking spaces on the RL360 House site.
As a temporary measure, 121 no. off site car parking spaces are to be provided close by on land owned by Dandara, PA16/00016/C.
Plan showing relative location of temporary car park (PA16/00016/C), to the Application Site (which is noted as Provident House)
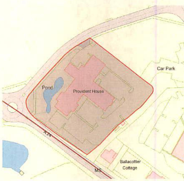
RL 360 House has a floor area of 26,812 sqft / 2490sqm, and 103 car parking spaces within the cartilage of the site, the extent of which is shown below; {{image:182086}}
Site extent for PA93/01460/B - Amended application for approved corporate HQ building with parking and landscaping
To increase the number of car parking spaces, it is proposed that the layout of the existing, at grade, car park will be reconfigured to make it more efficient and a new car parking deck will be constructed. Access on to the new car park deck will be from the adjacent land, to take advantage of the difference in ground levels. This has been agreed with the adjacent land owner.
The proposed reconfiguring of the existing car park will provide 120 spaces and the proposed car park deck will provide 56 spaces. This will result in a total car parking provision of 176 spaces.
Out of town office car parking requires that 1 space be provided for every 15 sqm , which would result in a total of 166 spaces being required for the RL360 site. Therefore, the 176 spaces which will be created by the proposed works will provide a small number of additional spaces to provide a buffer.

The proposed deck structure will consist of columns at ground floor level supporting a concrete deck. The level of the deck will run parallel with the existing ground level thereby limiting its height, particularly at its southern end.
There will be a perimeter guarding consisting of galvanised tubular rails and posts with wire mesh infill panels. Below the mesh panels will be planter boxes which will be planted with evergreen climbers and in time these will create a green screen to cover the mesh panels and will drape over the sides of the concrete deck. This will reduce the visual impact of the deck and allow it to blend into the landscaped setting. The additional planting will also benefit the flora and fauna of the site.
Example of lvy screen As well as being covered in climbing plants, the deck is also well screened by trees on the south east and south west boundaries of the site. The structure will have a low visual impact.
With regards to drainage, rainwater falling on the deck will be collected and discharged onto the existing car park deck level from where it will fall into the existing underground storm water drainage system.
The proposed deck sits next to the line of existing trees on the south east boundary of the site. Our Arboricultural Consultant, Manx Roots, carried out pre design surveys into the conditions of the trees and the extent of their root system. In consultation with Mr Andrew Igoea of the Forestry, Amenity and Lands Directorate, Manx Roots were able to establish that no tree roots extended under the area of the existing car park and that construction of concrete pad foundations to support the deck, would be accepted to the health of the trees as long as the foundations did not go outside of the foot print of the car park area.
A tree survey and commentary about the proposed design, including recommendations for protection of tree roots, is provided within Manx Roots report which forms part of this application.
Brief Planning history of the site PA89/04166/A - Approval in principle for development of 40 acre Business Park

PA90/04155/B - Layout of roads and sewers, Ballacottier Business Park PA92/01358/B - Erection of office building with associated parking and landscaping PA93/01460/B - Amended application for approved corporate HQ building with parking and landscaping;
PA95/01770/B - Construction of twenty temporary car parking spaces, Scottish Provident HQ, IOM Business Park;
PA 97/01909/B - Creation of additional car parking spaces, Provident House, IOM Business Park PA15/01366/B - Erection of HQ building on land adjacent to Canada Life House, IOM Buisness Park -Includes decked car park
The proposed alterations to the existing car park and introduction of a new car park deck will provide a more appropriate number of car parking spaces to serve RL 360 House. The design of


the deck will utilise a minimal structure and high levels of planting, and coupled with the existing trees will result in relatively low visual impact.
We trust that we have provided sufficient information for this application to be considered but should more information be required, please do not hesitate to contact the writer.
Yours faithfully,
George Li For and on behalf of Hartford Ltd.
Copyright in submitted documents remains with their authors. Request removal