From: Martyn Hobson <[email protected]> Sent: 12 September 2019 09:58 To: DEFA, South Planning Enquiries Cc: 'Nick Harris'; 'Jennifer Duggan'; [email protected] Subject: 19/00806/8 Attachments: View right.jpg; Field entrance.jpg; View left.jpg; 201909111540.pdf; N & J Harris-STABLE Planning.pdf
Caution: This email is from an external sender. Please take care before opening any attachments or following any links.
Good Morning
I forward this email to south planning as I am unsure which officer has been assigned to this application. Attached are the highways officers comments & objection suggesting that the entrance is not existing. Also attached are photos that demonstrate the access ā in line with the attached submitted drawing. Please could an officer advise the next course of action please, as I cannot understand the highways officers comments / suggestions.
Many thanks
Best regards
Martyn Hobson Director Arch Tec (IOM) Ltd Architectural Design Consultants Architectural Studio 20 Duke Street Douglas Isle Of Man IM1 2AY Telephone: 01624 622122 / 07624 498099
This e-mail and any attachments contained within are strictly confidential and may also be legally privileged. If you are not an addressee, the contents should not be retained, circulated, disclosed or used in any other way. Should this email have been received in error, please inform the sender immediately and delete it from your system.

A photograph showing a wet, paved rural lane bordered by grassy banks and wooden fencing.

A photograph showing a rural road with a house on the right and dense vegetation on the left, depicting the existing site context.
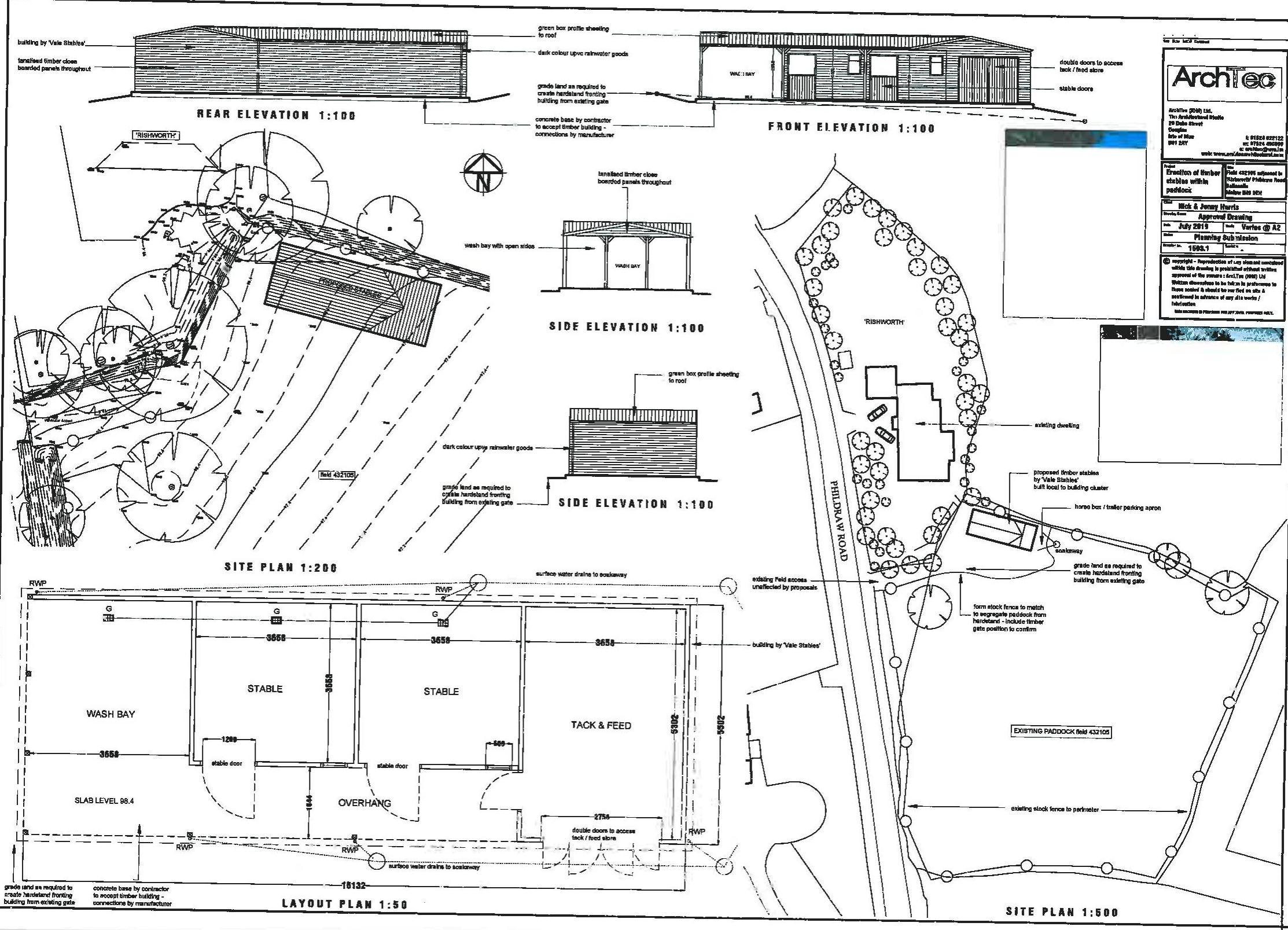
Application Reference: 19/00806 B Location: Field 432105 adjacent to "Rishworth" Phildraw Road Ballasalla Malew IM9 3EH. Description: Erection of timber stable building and creation of hard standing.
Highway Comments:
The drawings that form part of the planning application suggest the access is an existing arrangement.
It is not considered this is the case and will require sightlines to be provided that are commensurate with vehicle speeds on Phildraw Road and construction details of the access road and its relationship with the public highway.
However, this is not forthcoming as part of this application and in order for a satisfactory assessment to be undertaken. Refusal is therefore recommended given the lack of information. Recommendation: OBJECT
This image displays a set of architectural drawings for a stable block, including front, rear, and side elevations along with detailed site and layout plans.This image displays a composite architectural drawing sheet for a stable erection project, featuring elevations and site plans.A heavily degraded, high-contrast binary image showing geometric lines that resemble an architectural elevation or floor plan alongside text blocks.
Copyright in submitted documents remains with their authors. Request removal
Source & Provenance
Official reference
19/00806/B
Source authority
Isle of Man Government Planning & Building Control